Этот интерьер мы создавали для семьи с двумя детьми. Дом для них это отдых и непринужденное общение с друзьями и близкими. В основе — легкая светлая классика с небольшим вкраплением цвета. Хотелось что-то свежее, легкое и при этом вневременное.
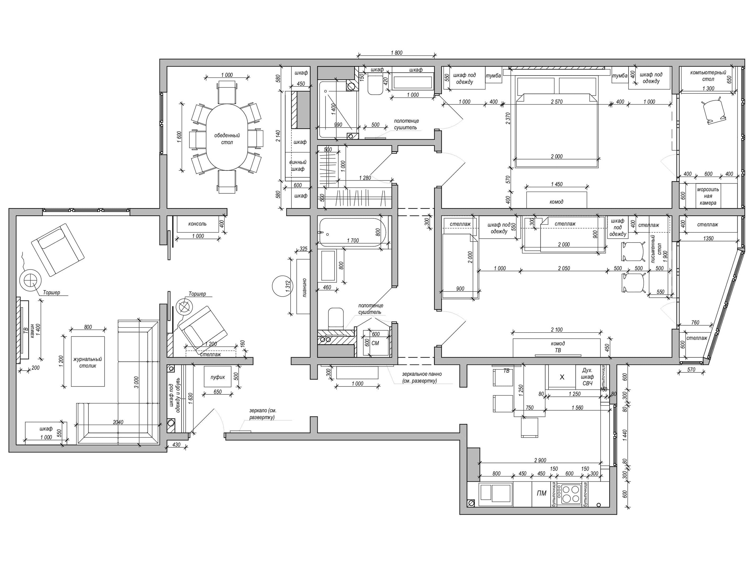
Начали с того, что клиенты объединили две соседние квартиры в панельном доме. Получилось пространство с большим количеством комнат, которые нужно было функционально обыграть так, чтобы было максимально удобно. Спальня с отдельной ванной, просторная детская, зона для приема гостей и гардеробная — все это мы уместили на 110 квадратных метрах. Стены трогать было нельзя, поэтому работали с исходной планировкой.
В этом интерьере мы использовали прием «цветные стены + светлая мебель». Цвета при этом брали пастельных оттенков, а мебель и декор — классической формы. Так и получилась та самая легкая классика, которую хотели наши клиенты. Дополнили молдингами и карнизами, а также использовали традиционные люстры и бра, чтобы собрать цельный образ.
Некоторые помещения хотелось сделать визуально еще легче и просторнее. С этим прекрасно справляются большие зеркальные панно. Одно из них появилось например в узком коридоре, соединяющем квартиры.
Мы постарались за счет цвета сделать каждую комнату немного непохожей на другие. В столовой, где будут собираться гости за игрой в покер, мы покрасили стены в приятный нежно-оранжевый цвет, спальня родителей — нежно голубая, а детская комната девочек — мятно розовая.
В квартире две ванные и они тоже разные. Общая ванная достаточно строгая, керамогранит под мрамор здесь сочетается с коричневыми фасадами мебели. А вот ванная при спальне наоборот яркая: бирюзовая плитка, мозаичное панно и орнамент на зеркале — все это заряжает бодростью и хорошим настроением на весь день.































