Лаконичный и функциональный интерьер в стиле минимализм с панорамными окнами и большим открытым пространством.
Супружеская пара с маленьким сыном построила дом и обратилась к нам за оформлением интерьера.
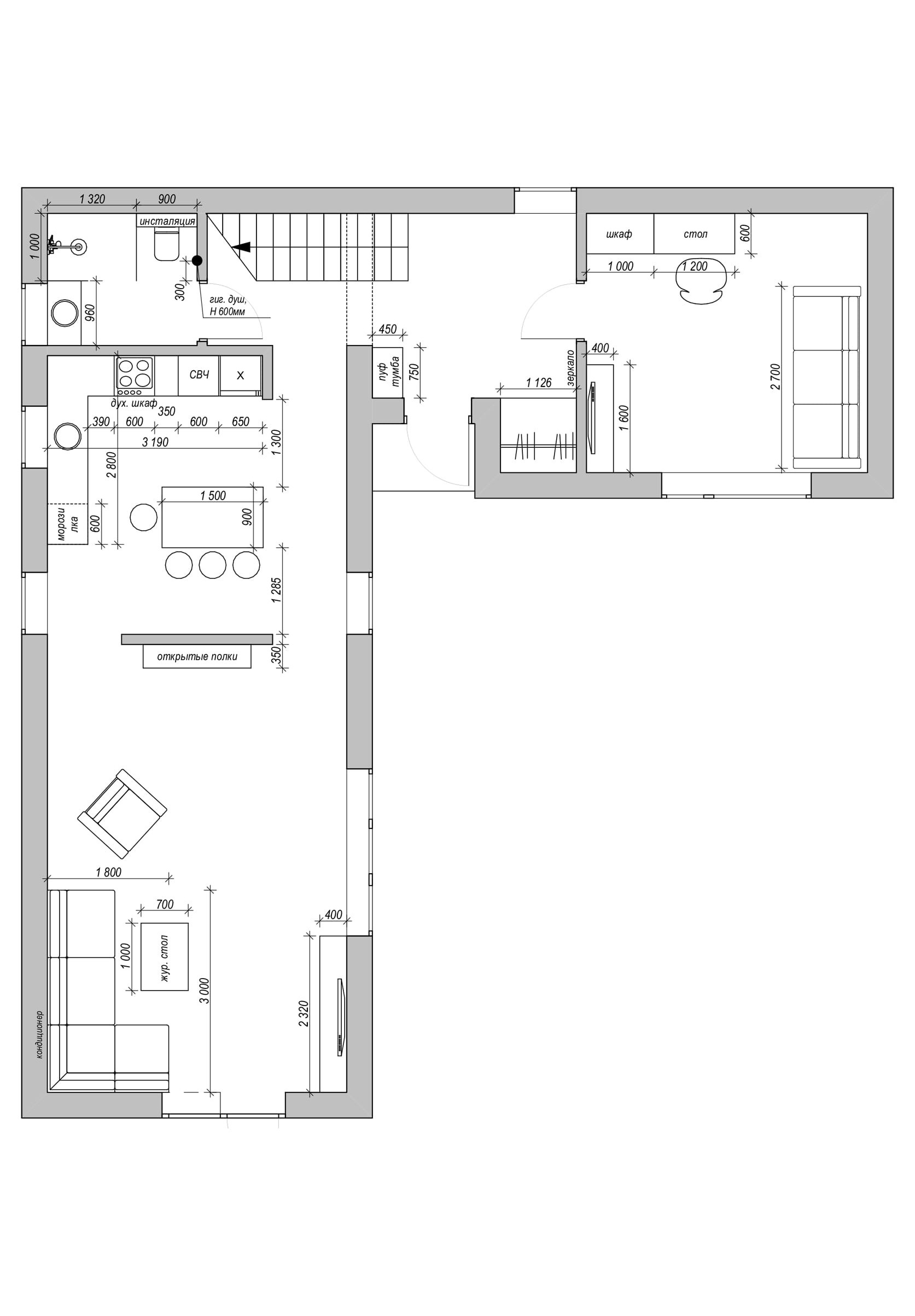
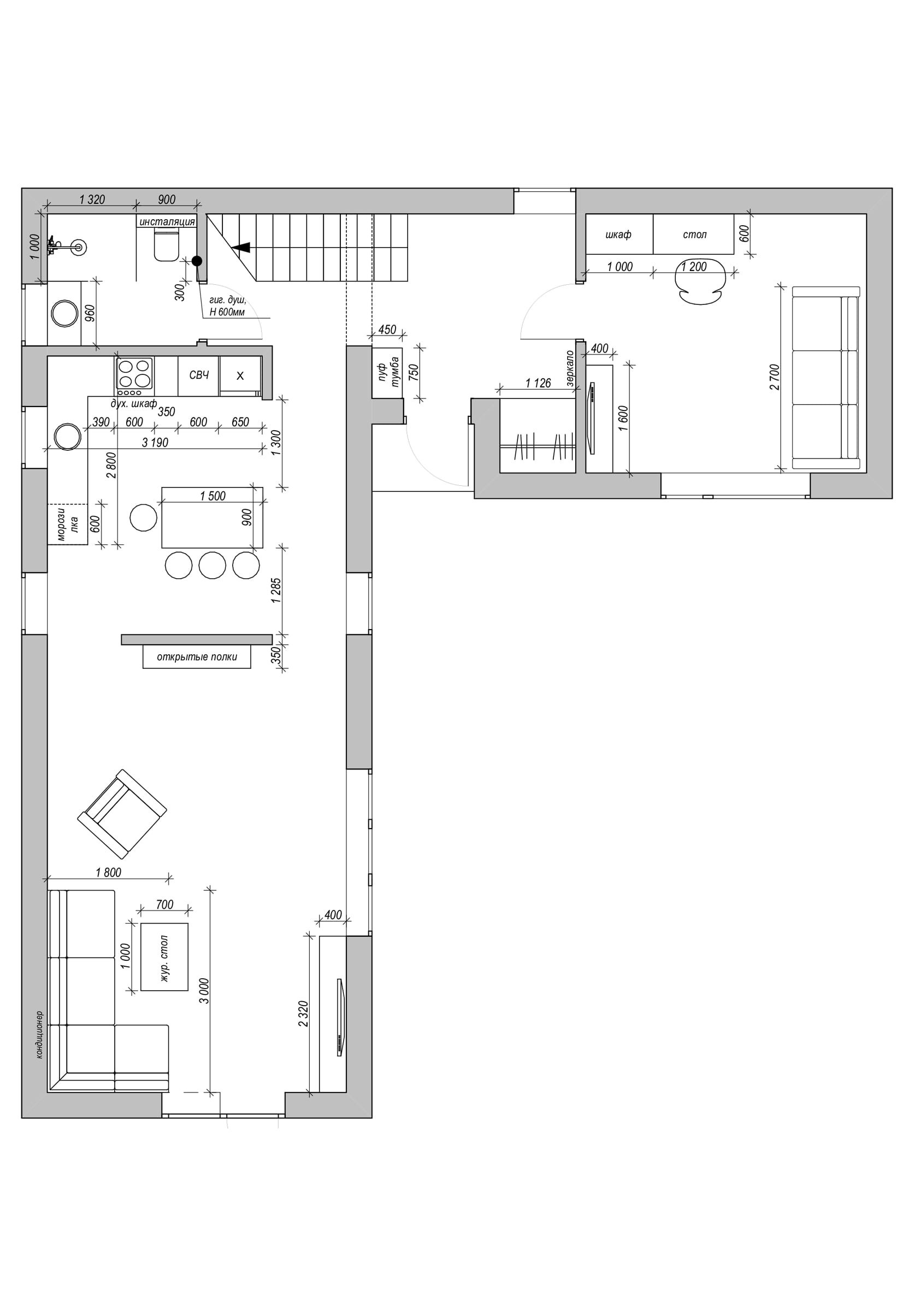
Необходимо было создать современный, функциональный и минималистичный дизайн с просторными комнатами, большим открытым пространством кухни-гостиной.
Мы постарались учесть все пожелания клиентов: создали единый стиль, использовали небольшое количество фактур и отделочных материалов. Весь интерьер исполнен в нейтральной серо-бежевой гамме с графитовыми акцентами.
В качестве материала для пола мы выбрали кварцвинил. Это позволило создать единое покрытие всего дома, включая кухню и ванную. Все остальные деревянные фактуры подбирались в тон, чтобы сохранить минималистичность дизайна.
На стенах использовали краску и декоративную штукатурку в двух цветах: серо-бежевый в качестве фона, темно серый для зонирования пространства.
Деревянные рейки и панели служат единственным декоративным элементом в оформлении. Освещение лаконичное и простое — треки, встроенные светильники и функциональная подсветка.
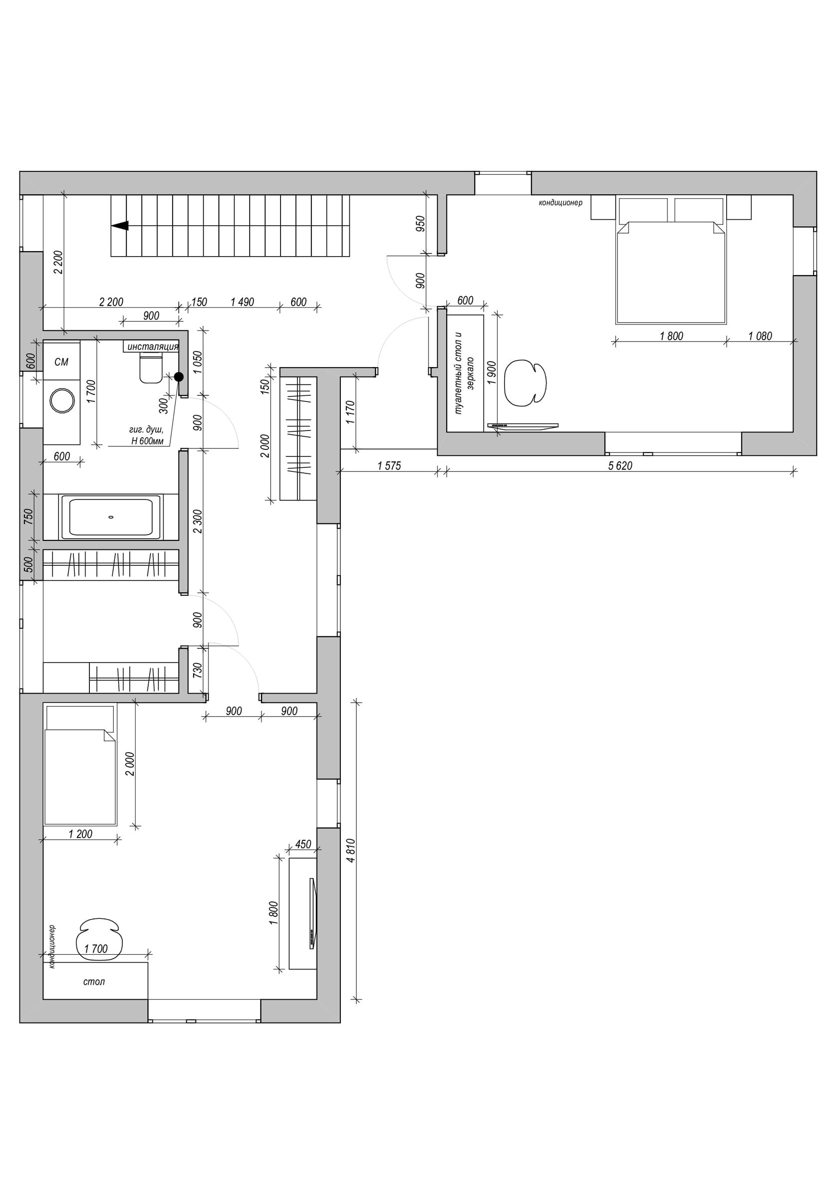
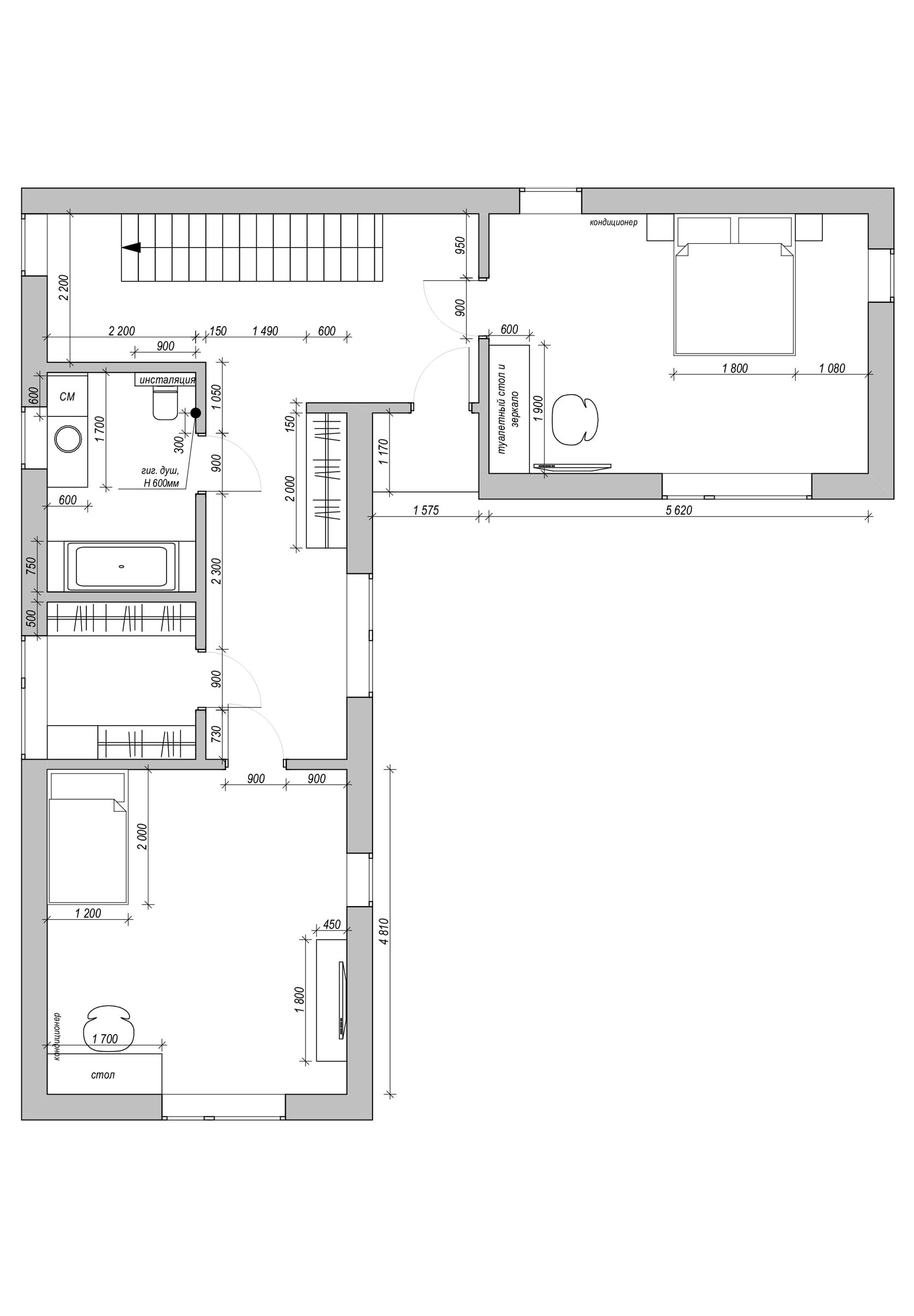
Если на первом этаже в основном открытое пространство, то второй этаж решен более изолированно. Здесь разместили две спальни, гардеробную и ванную комнату.
По дизайну они продолжают общую стилистику и здесь использованы все те же решения и материалы.
В детской комнате позволили себе использовать чуть больше цвета, чтобы ребенку было комфортно. Пространство можно легко трансформировать по мере взросления мальчика, меняя текстиль и декор по желанию.
Это же относиться и к другим комнатам — интерьер получился очень базовым и нейтральным, такой дизайн останется актуальным долгое время и если очень захочется его изменить — это не потребует больших усилий.






























