Увеличили площадь в два раза, смешали стили и получили уютное и светлое пространство для комфортной жизни.
Квартира в ЖК Поколение — небольшая по площади (изначально 36 квадратных метров), но за счет высоты потолка позволяет устроить полноценный второй уровень.
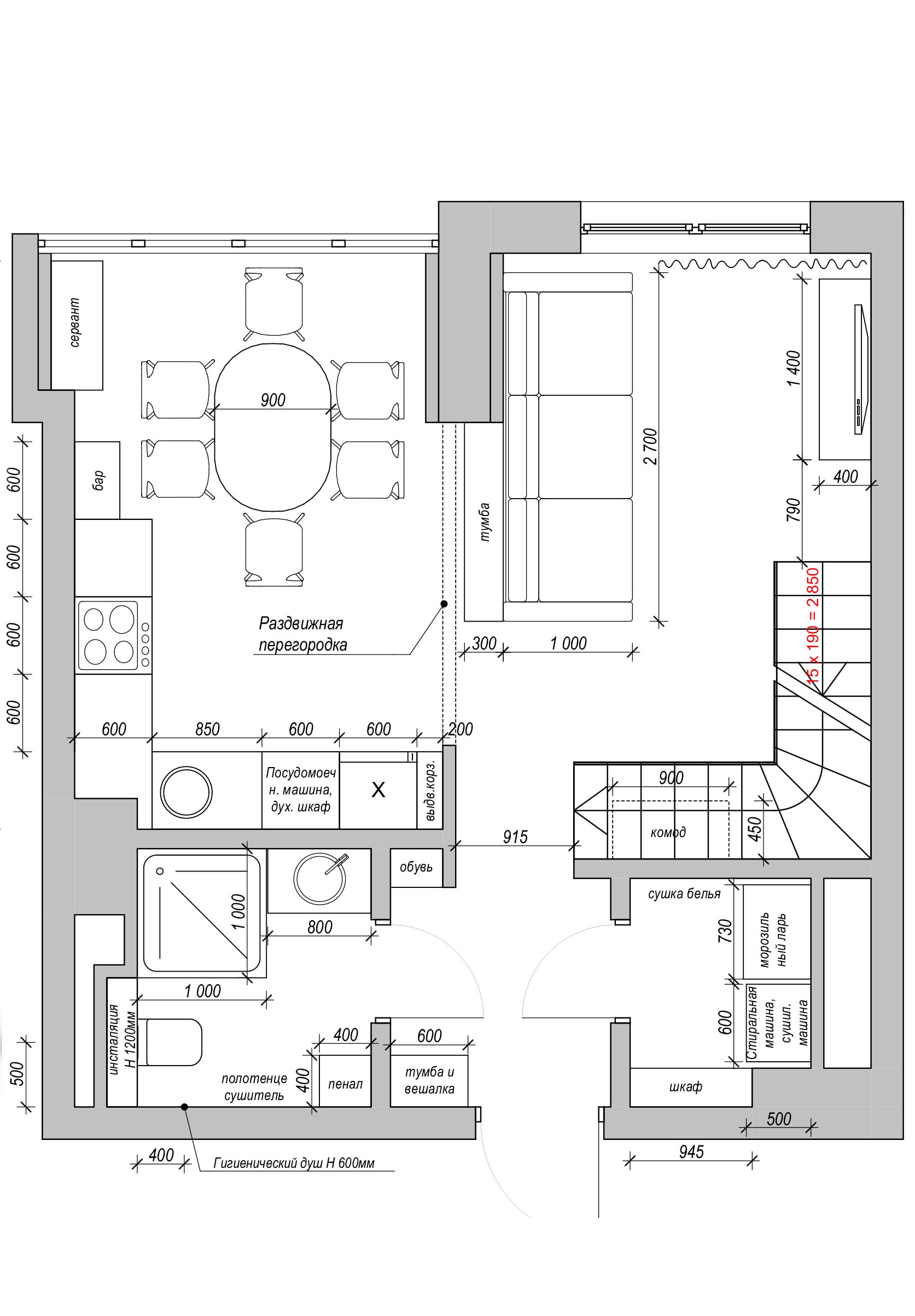
Наши клиенты, молодая пара, хотели функционально наполнить каждый сантиметр площади по-максимуму. Мы сделали несколько вариантов планировок и в итоге удалось на небольшом пространстве уместить прихожую, два санузла, прачечную, много мест для хранения, большую кухню со столовой, уютную гостиную, отдельную спальню. А также выделить место под беговую дорожку и рабочий стол.

План 1 этажа

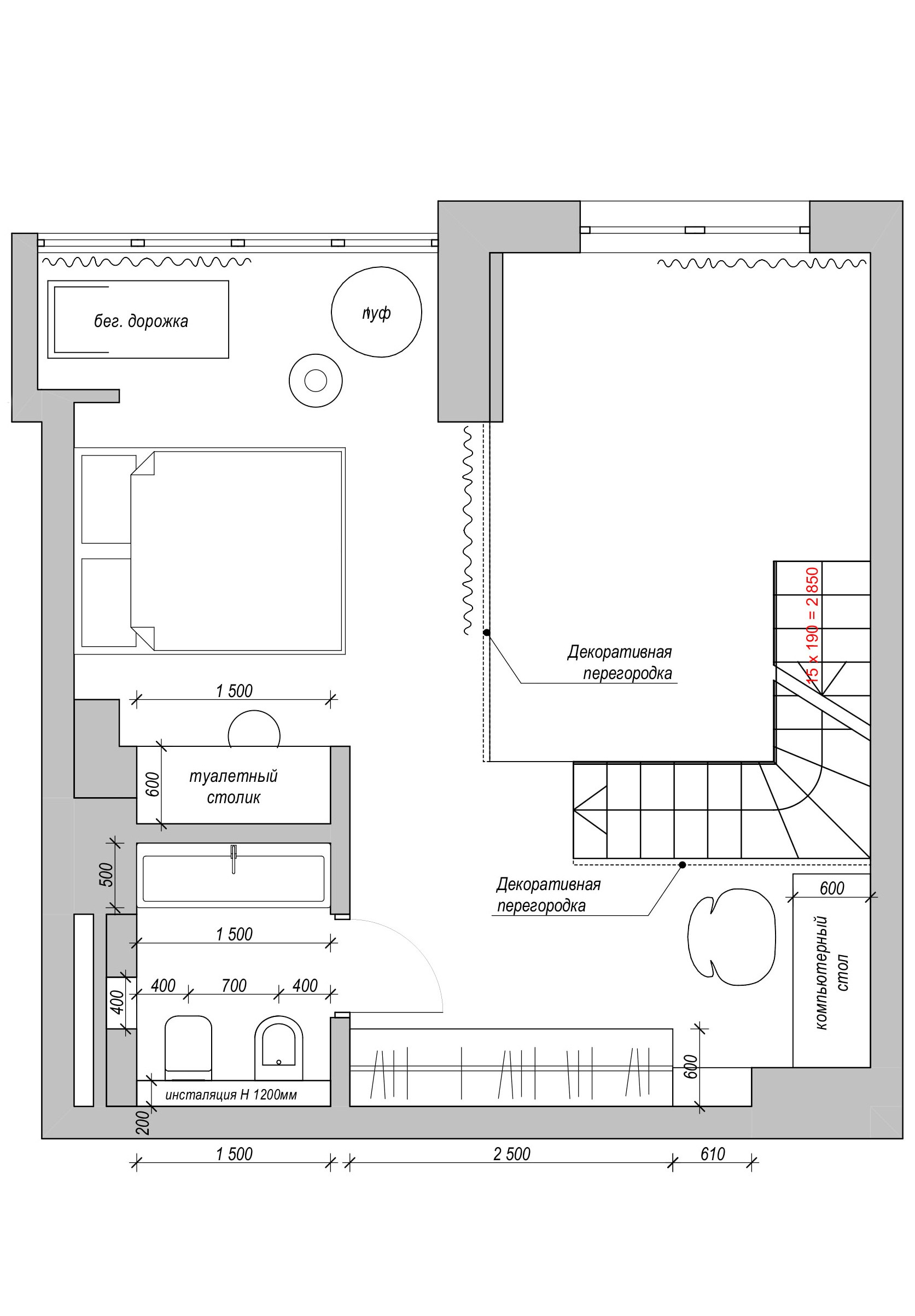
План 2 этажа
Второй уровень не полностью перекрывает нижний этаж, так что получилась очень выразительная архитектура помещения со вторым светом в зоне гостиной и практичной удобной лестницей.
Мы хотели создать уютный скандинавский интерьер с элементами прованса. Для этого использовали разнообразные деревянные фактуры, растительные принты и узоры, легкую цветовую гамму на базе белого и серо-голубого, а также интересное акцентное освещение.
Плитка с рисунком печворк от Kerlife идеально вписалась в нашу концепцию. Ее мы выбрали для кухонного фартука и на основе цветовой гаммы орнамента строили остальной интерьер. Так появились голубые стулья и шторы цвета пыльной розы.
В зоне спальни акцентом выступают фотообои с растительным орнаментом. Сама кровать находится в портале, который служит функциональным элементом — над кроватью установлены навесные шкафы для хранения вещей.
Такие решения предусмотрены по всем помещениям. Отдельной гардеробной комнаты в планировке нет, но достаточное количество встроенных шкафов до потолка позволяют разместить все необходимые вещи.
В квартире предусмотрены два санузла, по одному на этаж. В отделке они продолжают общую идею интерьера — также используются печворк и растительные принты. Декоративная подсветка теплого свечения добавляет уюта и позволяет регулировать насыщенность света в разное время суток.





























