Функционально и лаконично, уютно, современно и совсем немного игриво. «Ничего лишнего» — как попросили нас клиенты этого проекта.
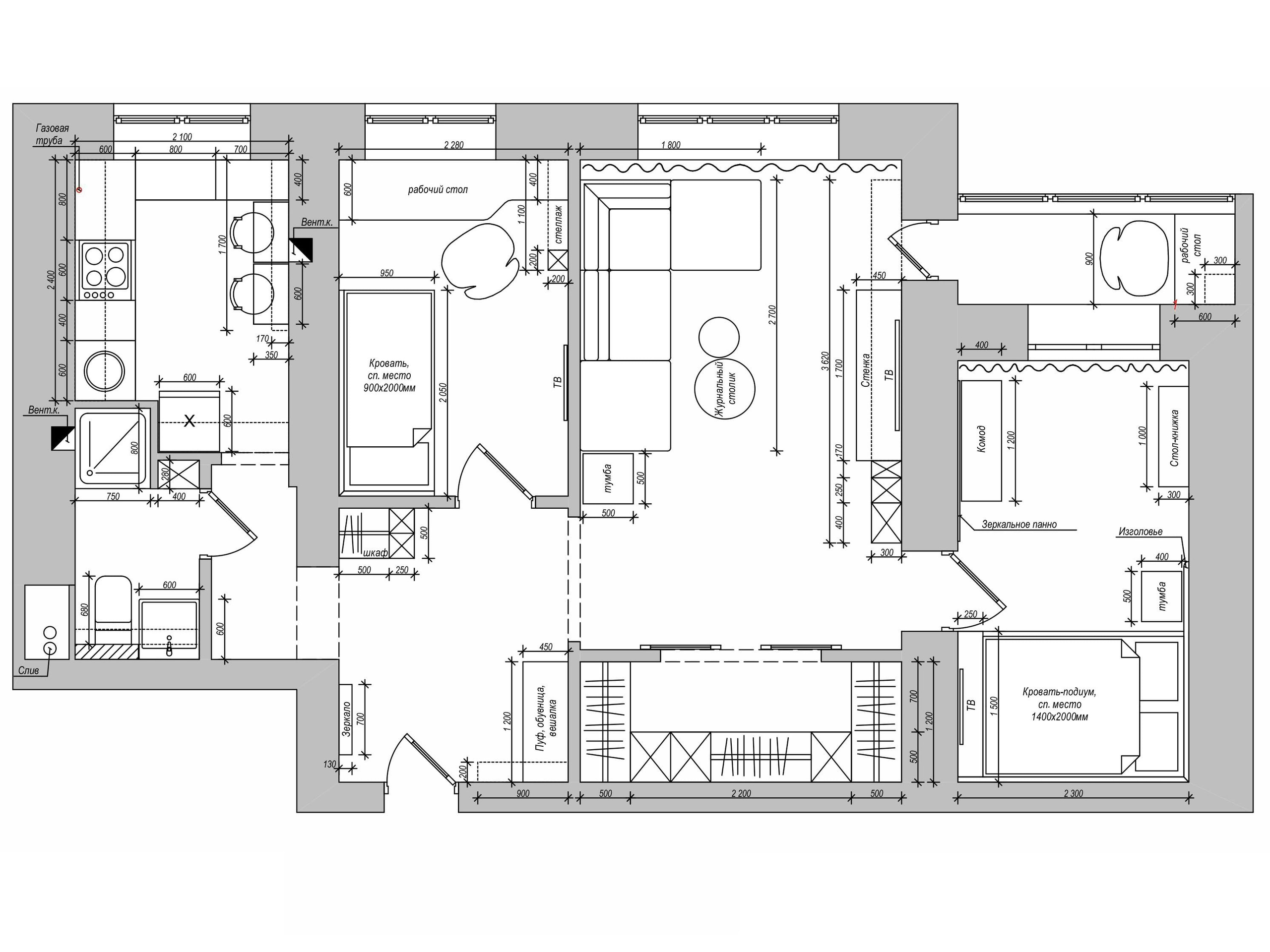
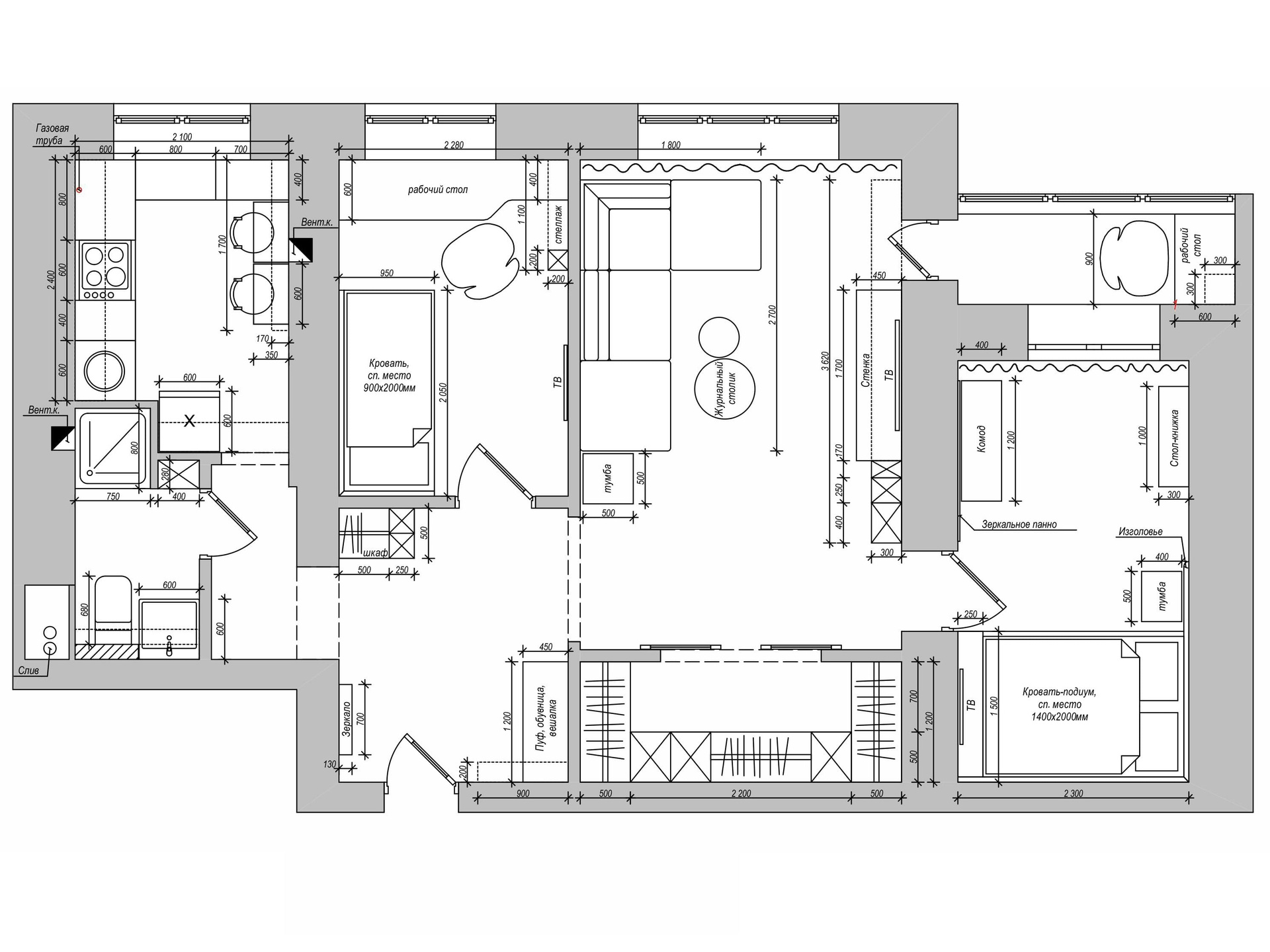
Трехкомнатную квартиру в хрущевке нужно было комфортно обустроить для молодой пары с маленьким сыном. В этой квартире была маленькая кухня, крохотный санузел и толстые несущие стены между комнатами. Работали практически без перепланировки, стараясь эффективно использовать уже существующие габариты помещений.
Гостиная - самое просторное помещение в квартире. Здесь планируется проводить большую часть времени, отдыхать и принимать гостей. Сюда также перенесли основные места для хранения. Появилась вместительная гардеробная, дополнительные шкафы и полки вдоль стены.
Кухня очень небольшая, всего 6 квадратных метров. Расширить ее было невозможно из-за несущей стены. Чтобы увеличить рабочую зону мы расположили кухонные тумбы у окна. Нашлось место и для холодильника с СВЧ. А чтобы было комфортно завтракать — организовали необычную обеденную зону с мобильными элементами, которые легко превращаются в небольшой, но удобный стол на трех человек.
Из-за особенности планировки, в спальне не помещалась полноценная кровать. Оптимальным решением оказался большой подиум, который одновременно служит спальным местом, а также имеет внутренние отделения для хранения вещей. Мягкие панели вместо изголовья добавляют уюта, а большое зеркало с подсветкой на стене визуально расширяет пространство.
Комната сына — самая яркая в этом проекте. Важно было, чтобы малышу было в его комнате интересно и при этом все нужные вещи были под рукой.
В отделке мы использовали самые практичные материалы — краску, декоративную штукатурку и керамогранит, они долговечные, легко моются и реставрируются. Дополняет интерьер современный лаконичный свет, с разными уровнями освещения.





























