Функциональное зонирование открытого пространства и создание уютного, спокойного интерьера с максимальным использованием уже существующих элементов.
В самом начале обсуждения этого проекта стояла задача просто освежить существующий ремонт. Но в процессе работы возникла идея улучшить планировку, чтобы сделать пространство более функциональным. Решили добавить новые элементы и поработать над атмосферой в интерьере.
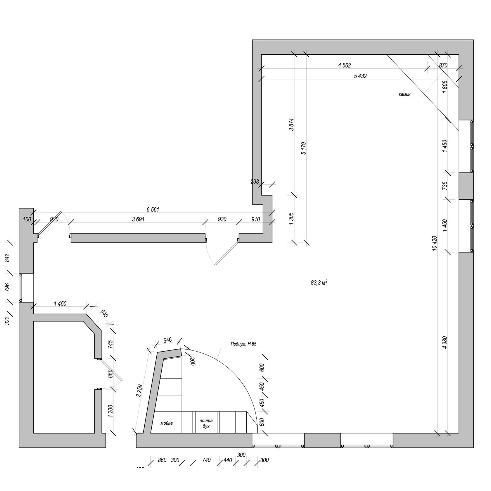
Изначально весь этаж представлял собой единое, ничем не разграниченное пространство, только кухня отделялась угловатой стеной с декоративными нишами, а холодильник был вынесен во входную зону.
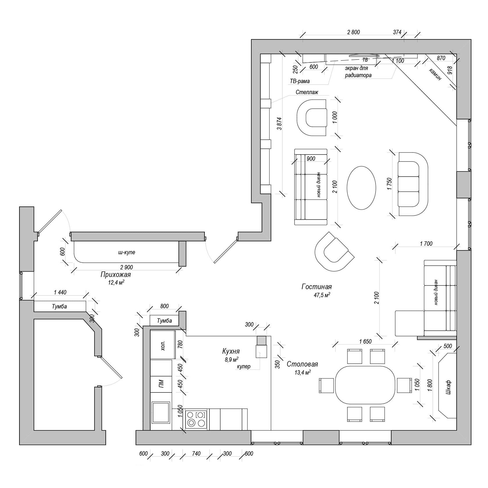
Мы сделали более четкое зонирование, отделили прихожую от остального пространства и поработали над эргономикой кухни — в итоге холодильник переехал на кухню, появилась посудомоечная машина и несколько новых кухонных модулей.
Хозяйка дома — профессор, много проводит времени в командировках. У нее большая семья, дети и внуки, которые приезжают в гости на праздники. В этом загородном доме нужно было создать интерьер для отдыха всех членов семьи.
Мы выбрали стиль русской усадьбы, потому что именно это направление очень близко заказчице по характеру. Для создания нужного эффекта использовали естественную природную гамму — несколько оттенков зеленого и коричневого, а также светлый фон молочного цвета. Эта цветовая гамма прекрасно легла на существующие элементы интерьера.
У заказчицы был отличный комплект из кожаных кресел и дивана, но его не хватало для размещения всех гостей дома, поэтому мы заказали еще два дивана в похожей стилистике, которые разместили в зоне гостиной.
В интерьере используются натуральные материалы и приятные на ощупь фактуры: дерево, кожа и бархат. Фартук на кухне и панно в ТВ-зоне выполнены из стекла с фотопечатью «под мрамор» — это практичное и достаточно бюджетное решение.
Чтобы не потерять цельность пространства, функциональные зоны разделили с помощью резных декоративных перегородок, они отлично подходят по стилю, а также хорошо пропускают свет и выглядят легко и ненавязчиво.
На разработку проекта и весь ремонт ушло всего в два месяца. Мы заказали всю нужную мебель и декор, а пока они изготавливались, строители успели поклеить обои и перестелить пол.
























