Спальня в нише, мебель из Икеа, бежевые стены и немного этники. Как мы делали проект однокомнатной квартиры с ограниченным бюджетом.
Работать с небольшими пространствами — очень интересная и одновременно сложная задача. На первый план здесь выдвигается удобство и функциональность, потому что в условиях ограниченности площади очень важно учесть и разместить все необходимые элементы так, чтобы они соответствовали хотя бы минимальным эргономическим требованиям, и порой борьба идет за каждый лишний сантиметр.
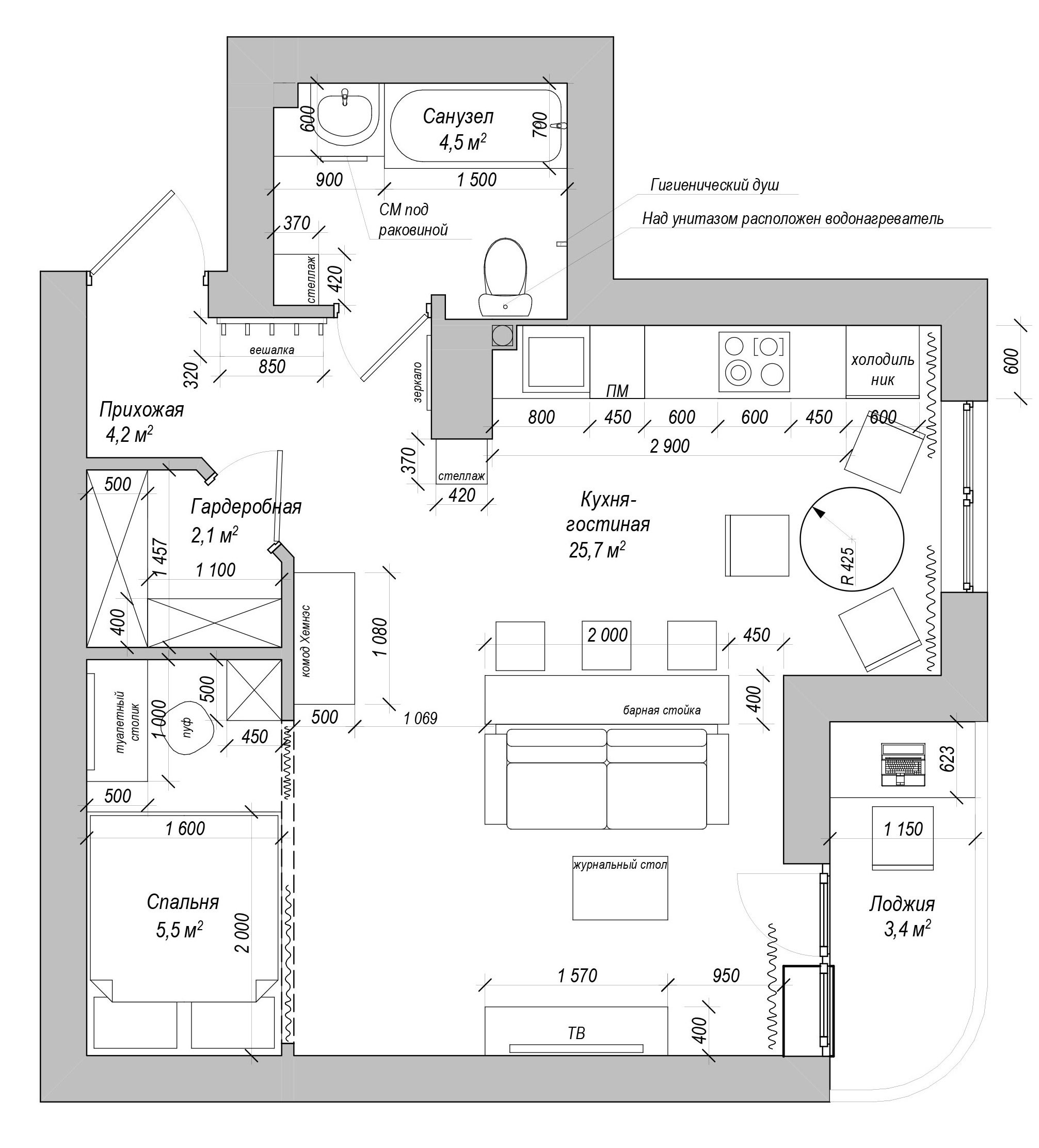
Несмотря на небольшую площадь само пространство оказалось достаточно удобным для организации всех необходимых нам зон. Мы отделили гардеробную и зону спальни, при этом там нашлось место для туалетного столика и небольшого стеллажа. Вход в гардеробную сделали под углом — таким образом немного расширилась зона прихожей, мы избежали узкого и вытянутого пространства и прихожая стала намного удобнее в использовании.
Остальная часть квартиры поделилась на кухонную зону и зону гостиной, которые условно разделены барной стойкой. На лоджии организовали рабочий кабинет.
Было решено что большинство мебели будет марки ИКЕА, и все утвержденные варианты мы также внесли в планировочное решение.

Это тот случай, когда заказчики точно знали что хотят, и как должен выглядеть их будущий дом. Они принесли нам пример интерьера, в котором им нравилось буквально все и попросили сделать что-то подобное. В таком формате работы важно не просто сделать копию, а переосмыслить предложенный вариант, переработать его с учетом проектируемого пространства и конечно внести долю характера самих заказчиков.
Наш интерьер вышел немного с этническими нотками, это получилось за счет скандинавской мебели и медных светильников. Яркие красные акценты создают настроение, но при желании их легко можно заменить декор любого цвета и стиля — интерьер при этом не потеряет своей целостности.
Заказчики любят путешествовать и привозят из поездок различные сувениры и предметы интерьера, поэтому было важно создать достаточно нейтральное фоновое пространство, которое можно легко изменять по желанию.
В проекте были использованы простые бюджетные решения — покраска стен, недорогие обои, немного декоративного камня и мебель из ИКЕА. Тем не менее все эти элементы создают уютное и стильное пространство.
Интерьер получился позитивный и жизнеутверждающий, что на наш взгляд очень подходит нашим заказчикам.
























