Проект Рассвет — это нотки лофта в неожиданном цветовом исполнении, детская по мотивам Звездных войн и стильные одуванчики в спальне.
В этой квартире в одном из спальных районов Саратова необходимо было создать простое уютное пространство для жизни. Клиентам нравился лофт, но хотелось что-то более уютное и спокойное.
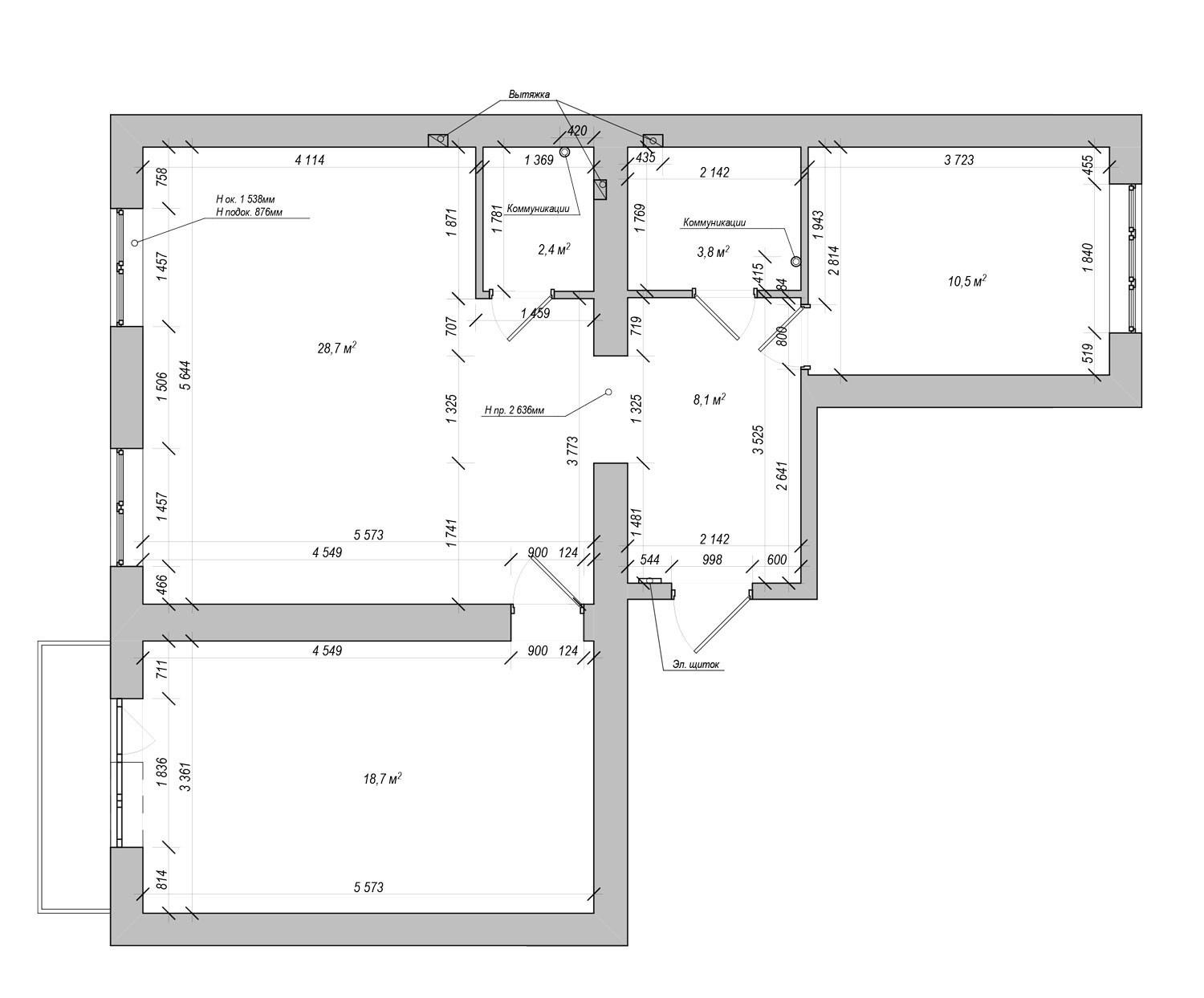
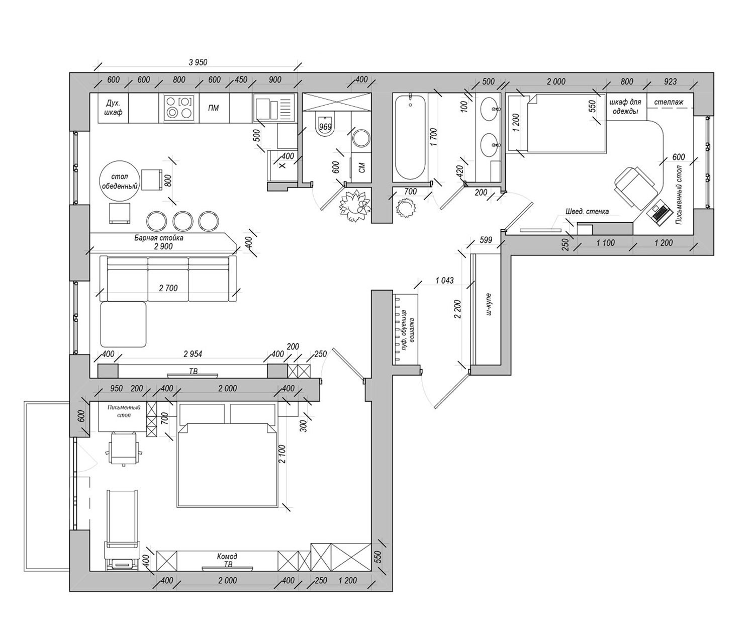
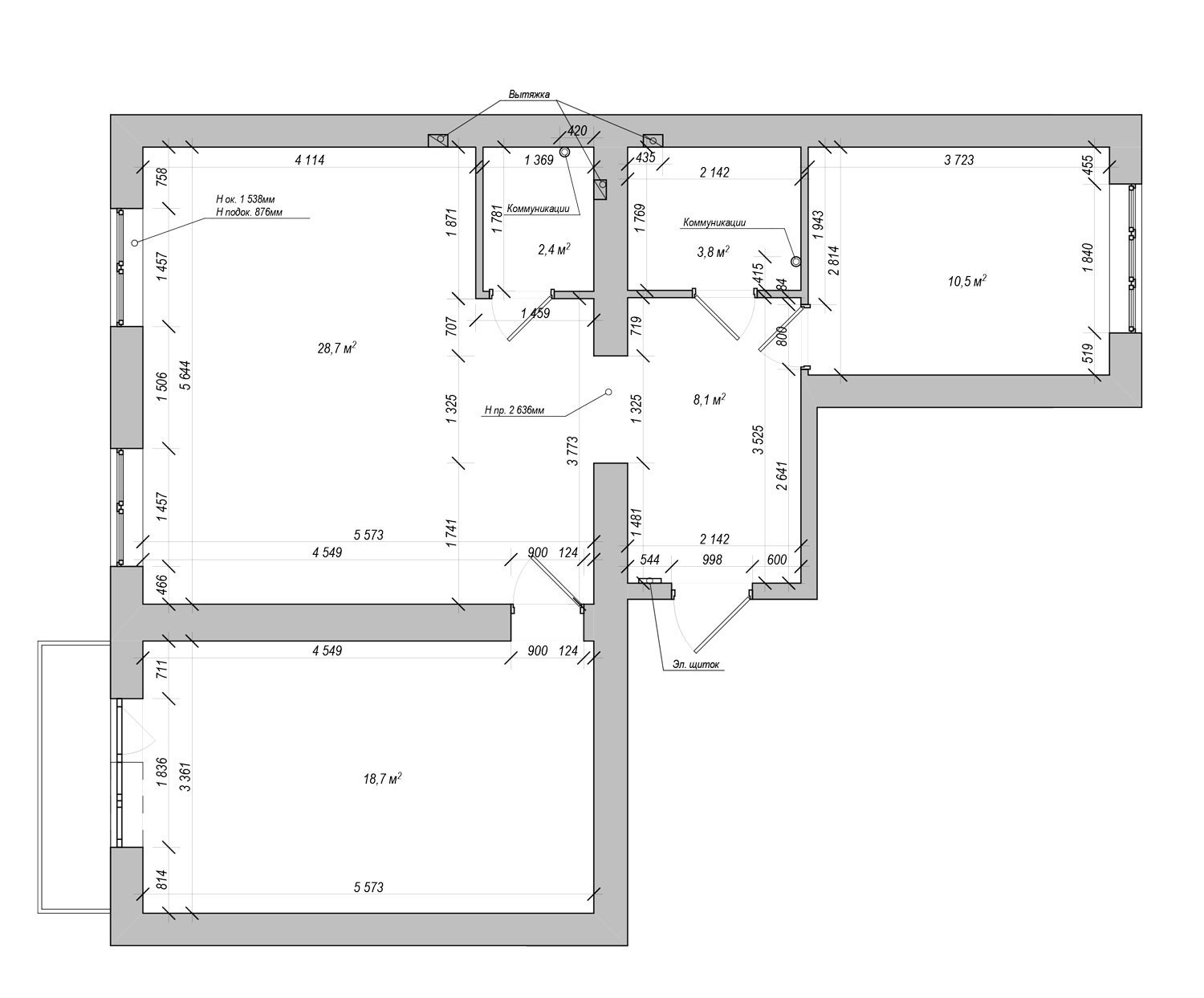
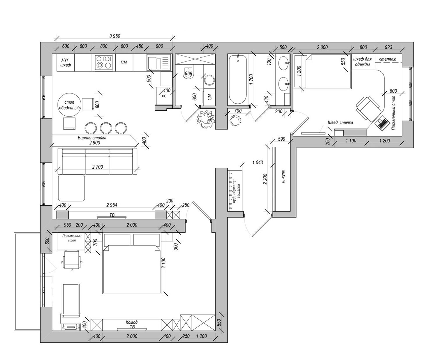
Планировка квартиры уже изначально была достаточно удобной и вполне подходила под наши задачи, поэтому стены и перегородки решили не трогать. Мы предложили несколько вариантов расстановки мебели и организации функциональных зон и в итоге был выбран самый оптимальный вариант.
Две комнаты были отведены под спальни, а основное помещение организовано в формате студии — перетекающее пространство, объединяющее зоны прихожей, кухни и гостиной.
Также в квартире разместились большие шкафы для хранения необходимых вещей, небольшой раскладывающийся обеденный стол и беговая дорожка.

Образом для вдохновения послужило раннее утро, когда солнечные лучи только только начинают пробиваться сквозь ночное небо. Это пора предвкушения нового дня, спокойная, неспешная и немного мечтательная.
В основе этого интерьера лежит современный стиль, с его простыми и понятными линиями и формами. Элементы лофта лишь немного проскальзывают в виде кирпичной кладки на стенах и имитации бетонных балок и колонн.
Идея раннего утра отражена через цвет. Сквозь немного пасмурную серо-голубую гамму пробиваются желтоватые оттенки, подобно предрассветным лучам. Эту же идею поддерживает световые полосы освещения.
Гардеробная в квартире не предусмотрена, поэтому основное место для хранения вещей решили разместить в спальне. Распашные шкафы мы разделили на модули и собрали из них объемную композицию, которая органично вписалась в пространство комнаты.
Сложная цветовая гамма на основе оливкового и голубого поддерживает общую идею интерьера, а изюминкой спальни стало черно-белое фото одуванчика, напечатанное на фасадах шкафа.

Для сына решили сделать необычную комнату. Мужской половине семьи очень нравится космическая тематика, особенно фильм Звездные войны, и поэтому немного мотивов из этой космической саги мы привнесли в интерьер детской.


























