Творческая атмосфера, запах пирогов на большой кухне, маленький сад и множество разных фактур объединенных в единое целое — все это в интерьере Лоскутное одеяло
Владельцы этой квартиры — взрослая пара с множеством разных увлечений. Они путешествуют и занимаются спортом. Хозяйка в свободное время пишет картины, а муж увлекается охотой и очень любит готовить. Для них было особенно важно, чтобы дома царили радостное настроение, уют и комфорт.
В процессе обсуждения идеи, супруги сказали: «Хотим, чтобы в доме пахло пирогами». В итоге мы предложили использовать образы домашней выпечки и уютного лоскутного пледа и соединить их в современном и функциональном интерьере. В результате получился проект, полностью отражающий характер этой интересной пары.

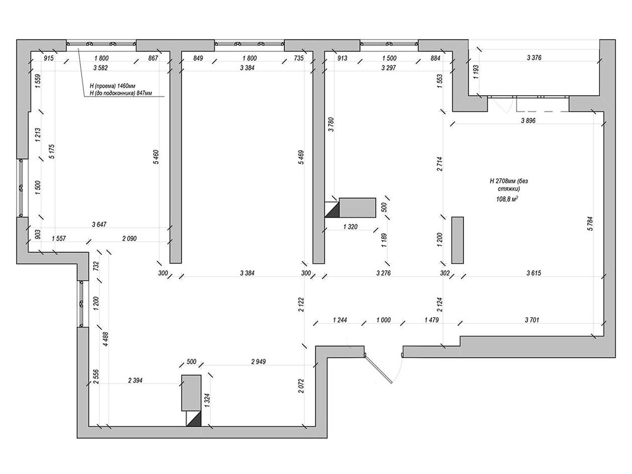
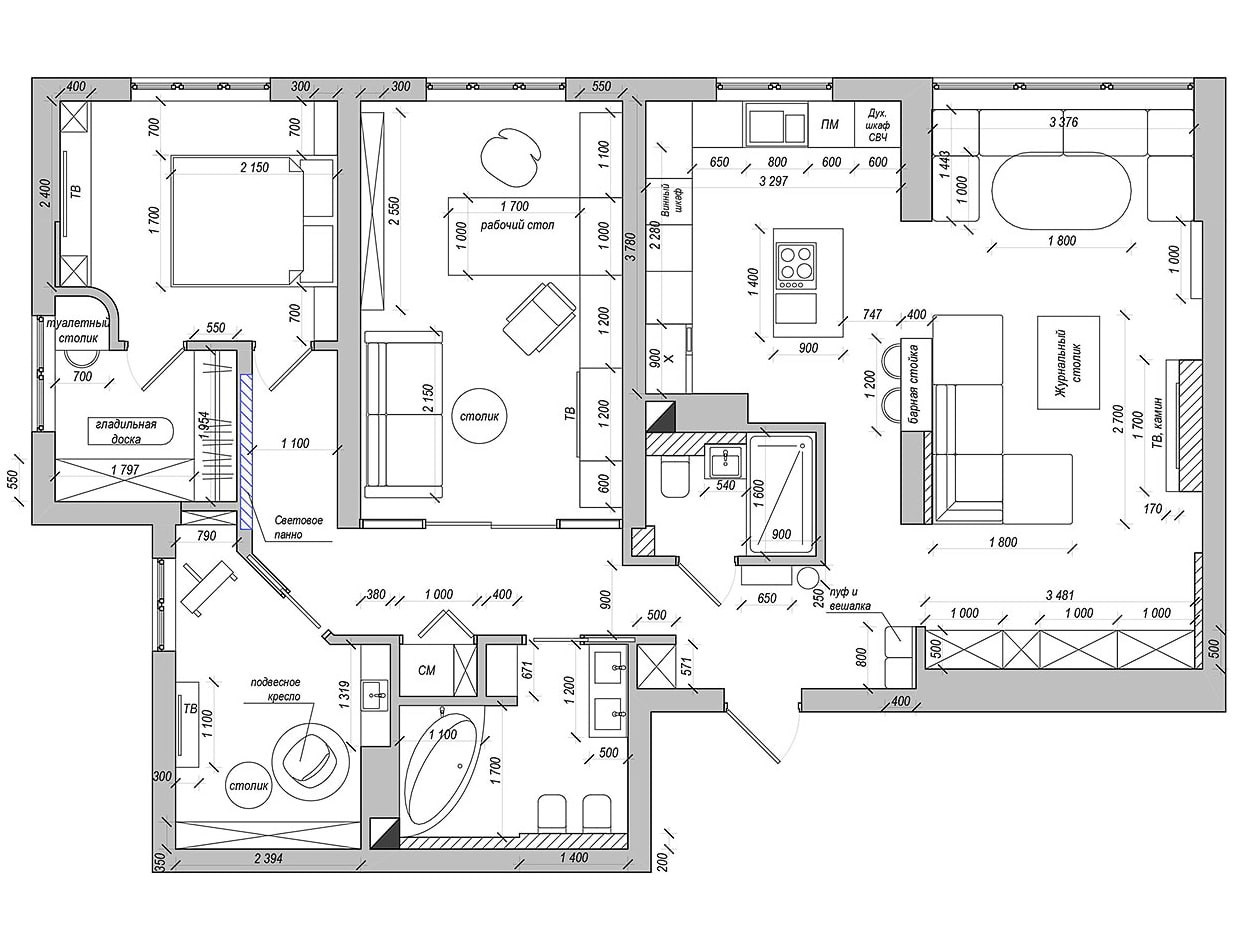
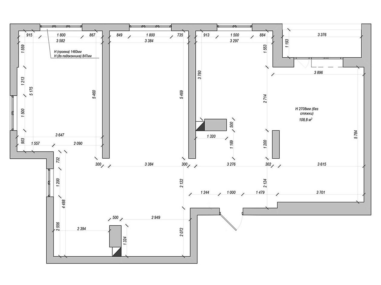
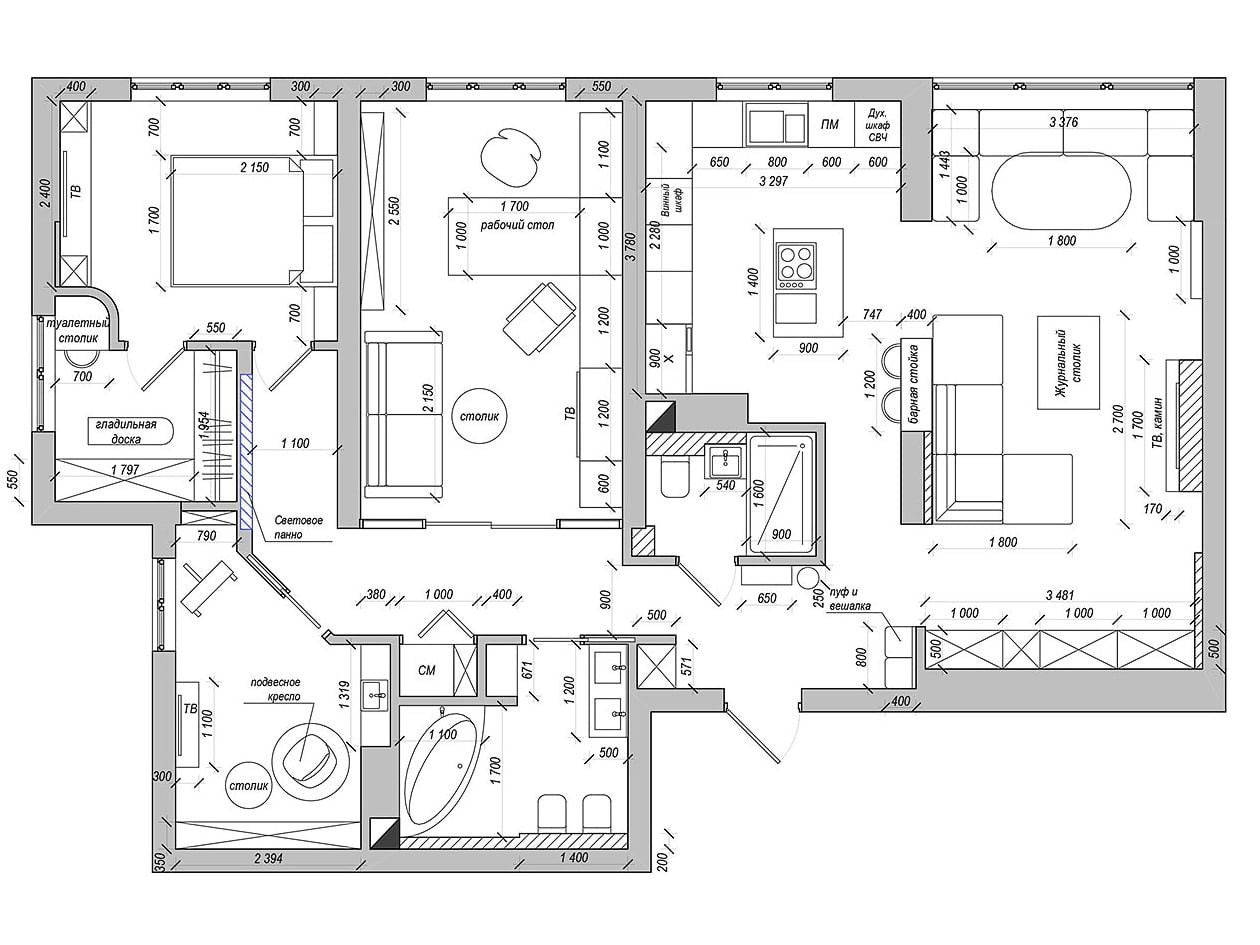
Все пространство поделено на две основные зоны — общую и приватную. Общая зона просторная и открытая, здесь расположены кухня, столовая, гостиная и прихожая.
Лоджию присоединили и утеплили. На этом месте возникла столовая — любимое место супругов, так как из окна открывается красивый вид на город.
Приватную зону мы поделили на отдельные комнаты. Здесь расположилась небольшая спальня, гардеробная, кабинет для мужа и художественная мастерская для жены. Обязательным условием было устройство гостевого туалета и большой ванной комнаты.
Для хранения инвентаря для охоты и путешествий предусмотрены вместительные шкафы в кабинете и гостиной. Бытовые принадлежности и стиральная машина спрятаны в кладовую при в ходе в ванную.
Центральное место в гостиной занимают два больших дивана. Их достаточно, чтобы при необходимости размещать большое количество гостей и с комфортом проводить время.
Для создания ощущения «лоскутности» мы соединили много разных фактур в одном помещении. Использовали несколько видов камня, дерева, керамики и текстиля. При этом цветовая гамма нейтральная и выстроена на близких оттенках одного цвета. Таким образом все многообразие материалов выглядит цельно и органично.
Интересными деталями стали биокамин и фитостена. Живые растения — спатифиллумы — неприхотливые в уходе, кроме того мы специально предусмотрели систему автоматического полива. Зеленая листва и изящные белые цветы хорошо дополняют интерьер, а настоящее пламя камина создает особенную атмосферу уюта.
На функциональной кухне установлена вся техника, необходимая мужу-кулинару, в том числе большой холодильник, винный шкаф и встроенный гриль. Часть техники разместилась в кухонном острове, здесь же предусмотрены дополнительные места для хранения посуды и кухонной утвари.
Мебель для прихожей изготовили на заказ. Входная зона небольшая, но здесь есть все необходимое: зеркало в полный рост, мягкий пуф, открытая вешалка и консоль с ящиками под мелочь. За зеркалом скрыт встроенный шкаф под одежду, а пуф служит обувницей. На стене развешены картины — работы хозяйки дома.
Когда мы увидели коллекцию плитки Eden итальянской фабрики Ava, то поняли, что она идеально впишется в интерьер ванной комнаты. Мозаику к этой плитке подобрали темного цвета, а мебель оставили белой. В итоге получился нежный интерьер, выдержанный в общей стилистике квартиры.
Для удобства хозяев поставили большую двойную раковину, в нишу встроили шкаф, а над ванной устроили несколько открытых полок с подсветкой.
Для второго санузла мы выбрали недорогую отечественную плитку и мозаику из той же коллекции. Получилось очень бюджетное, но при этом эффектное решение.
Стены спальни расписаны в технике трафаретной росписи. Узор нанесен на штукатурку и по внешнему виду похож на настоящую фреску. Изголовье кровати сделано на заказ и выполнено из мягких панелей, смонтированных непосредственно на стену. Дополняют интерьер крупные светильники с абажурами.
Давняя мечта хозяйки — своя художественная мастерская. Место, где можно сосредоточиться на любимом занятии, отдохнуть от домашнего быта и помечтать.
В мастерской поставили мольберт и стеллажи для хранения необходимых инструментов, подвели воду и установили раковину. А необычное и при этом удобное подвесное кресло подчеркивает творческих дух хозяйки.
В отделке было важно использовать материалы, которые легко мыть. Поэтому на пол мы положили плитку, а стены выкрасили краской.
Большую комнату в центре квартиры отвели под рабочий кабинет для хозяина квартиры. Помещение по настроению отличается от остальных — оно выполнено в темной гамме и классическом стиле. При этом элементы «лоскутности» просматриваются и здесь: в орнаменте ковра и ярких желтых подушках на диване.



































