Африканские мотивы, кухня цвета корицы и яркая желтая гостиная — все это мы придумали для наших клиентов, а также постарались выжать максимум из существующей планировки, чтобы создать комфортное пространство для каждого члена семьи.
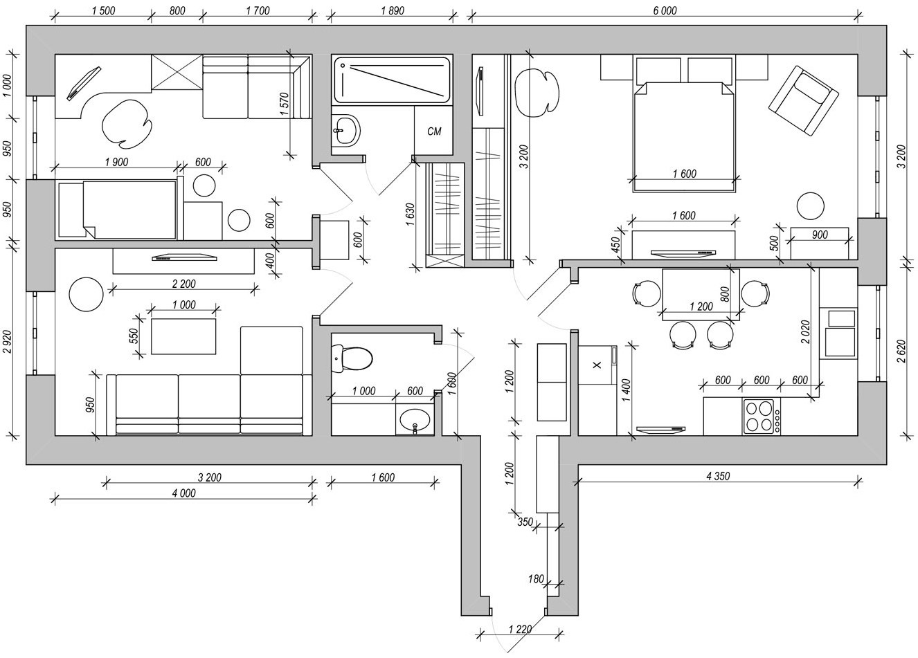
Квартира имеет исходную планировку закрытого типа, которая включает: 3 отдельные комнаты, кухню, два санузла и холл. Общая площадь: 74,3 квадратный метра.
Наши клиенты — супруги с двумя сыновьями. Для них такая планировка это хороший вариант, у каждого есть личное пространство, можно заниматься своими делами и не тревожить других. Большую комнату отвели под родительскую спальню с рабочим местом, в остальных комнатах организовали детскую и гостиную.
Семья обожает все яркое и необычное. Мы просмотрели разные варианты по стилю и в итоге остановились на африканском — его динамичный и энергичный колорит создает солнечное настроение и заряжает бодростью.
Гостиная — самое яркое место в этой квартире. Здесь семья собирается вместе, проводит праздники, встречает гостей. В комнате разместили только самую необходимую для приятного отдыха мебель: большой диван с журнальным столом и легкие стеллажи для книг и сувениров.
Ярко-желтые стены достаточно сильный акцент, поэтому все остальные элементы более нейтральные по цвету. Яркий фон уравновешивается молочными и коричневыми оттенками мебели и текстиля.
Для кухни мы использовали приглушенные оранжевые и шоколадные оттенки. Получилась комната цвета корицы — то что нужно для создания уютной атмосферы. Угловую кухню разместили вдоль окна, а при входе установили встроенный холодильник и вместительный пенал. Такое разделение корректирует вытянутые пропорции помещения, а за счет не занятого участка стены кухня воспринимается легче.
Спальня — место отдыха и личное пространство родителей. Здесь можно уединиться, расслабиться и восстановиться после насыщенного дня.
Мебель выполнена в этническом стиле и из натуральных материалов: дерево грубой фактуры, кованый металл и стекло. Пол устелили ковролином. Он мягкий и приятный на ощупь, а также хорошо поглощает шум.
В шкаф-купе мы спрятали компьютерный стол. Так по желанию спальня превращается в рабочий кабинет, а в остальное время она не перегружена функционалом.
Бежевая природная цветовая гамма успокаивает и расслабляет. Чтобы интерьер не получился монотонным, мы добавили немного графики: рисунок зебры на шкафу, кованые элементы и большие картины над кроватью. Яркими акцентами стали желтые абажуры светильников и голубая римская штора.
Старшему сыну 10 лет, он школьник и ему требуется достаточно места для учебы и отдыха. Около окна в детской мы поставили угловой компьютерный стол, а напротив стола установили кровать с выдвижными ящиками.
Младшему брату 5 лет и для него организована личная территория с игровой зоной. Резная деревянная перегородка отделяет одну зону от другой и служит интересным декоративным акцентом.
Ванная комната светлая с яркими акцентами. Необычная плитка «под кожу» и бордюр с этническим рисунком поддерживают общую идею дизайна в африканском стиле. Гостевой туалет получился более спокойный, в темных тонах с золотистыми вставками.
Комнаты сообщаются между собой через узкий коридор. Для расширения пространства мы использовали диагональную укладку напольного покрытия и большие зеркала.
Помещение самое спокойное по цвету. Акцент — мелкая напольная плитка с состаренным эффектом.
Чтобы замаскировать торец шкафа, где хранятся сезонные вещи, мы возвели простенок с нишами из гипсокартона. В этих нишах разместились сувениры, которые семья привозит из путешествий.
































