Эта квартира предназначена для супружеской пары с тремя детьми. В начале работы мы четко обозначили задачи: должно быть уютно, функционально и очень практично
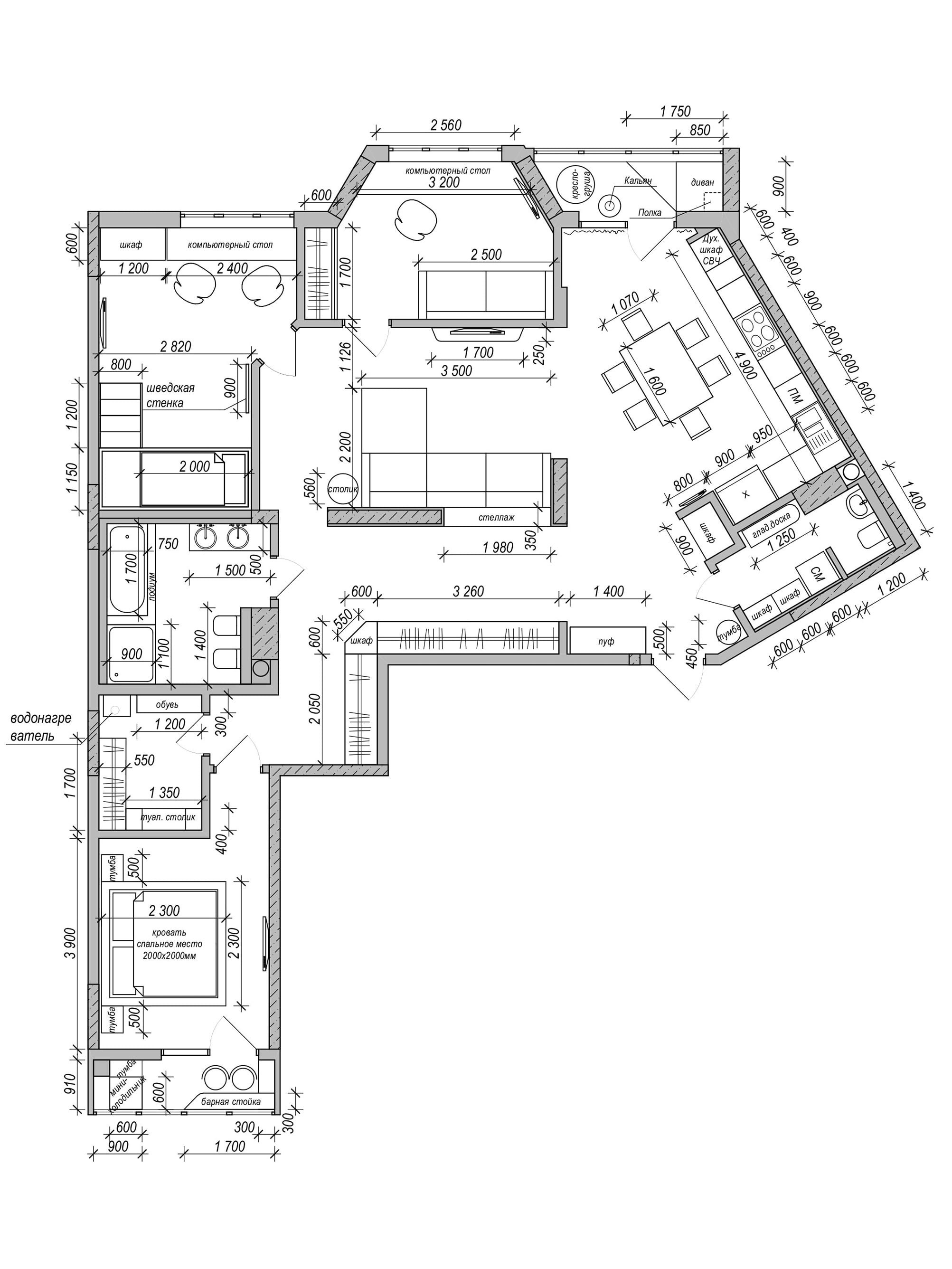
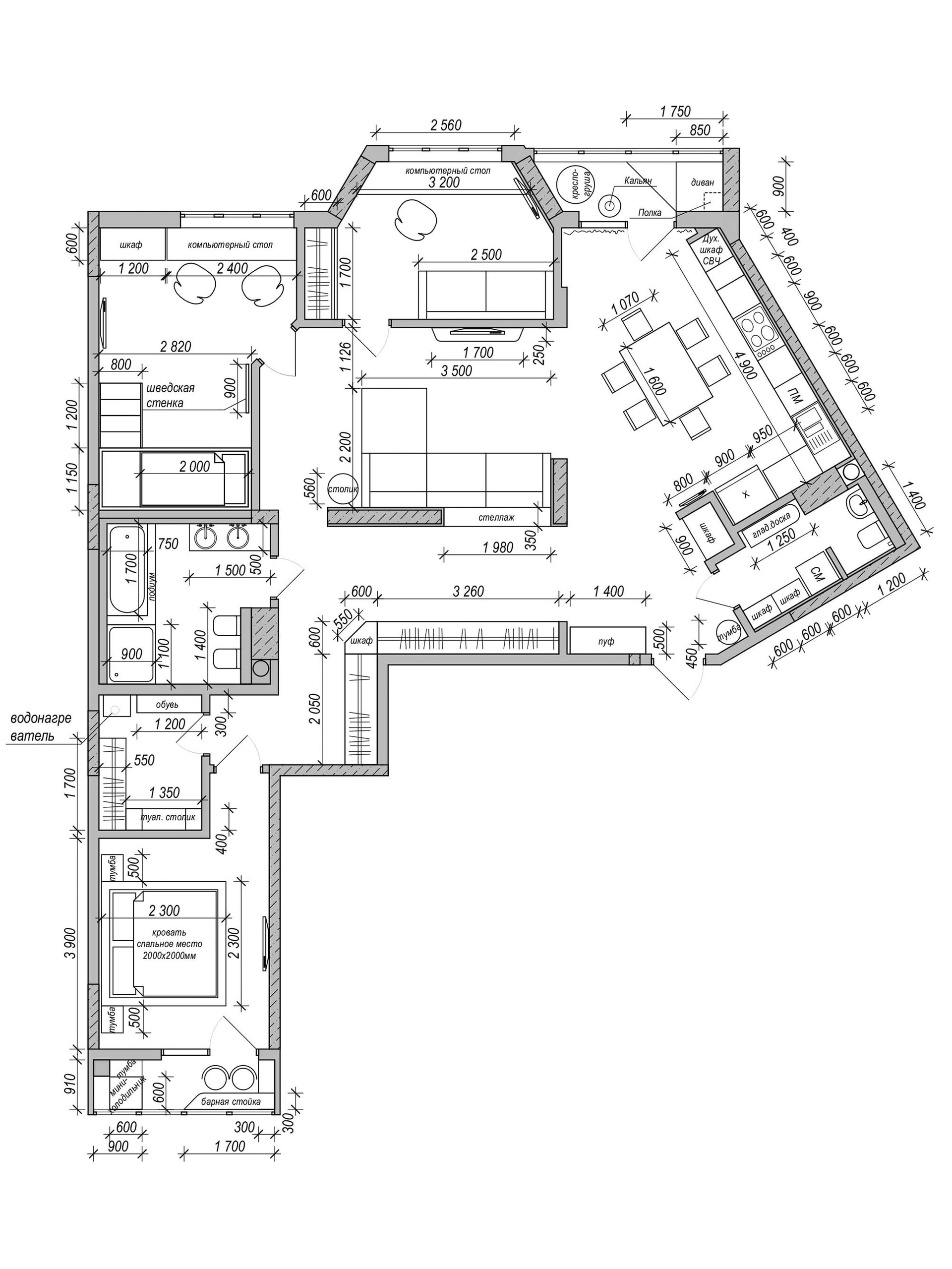
Вначале тщательно проработали планировку и получили многофункциональное пространство с тремя отдельными спальнями, прачечной, отдельной гардеробной, баром, кальянной и большим количеством мест для хранения.
В работе над дизайном мы опирались на стиль контемпорари с его лаконичностью и функциональностью. Материалы для отделки выбирали самые неубиваемые и практичные: на стенах декоративная штукатурка, на полу коммерческий ламинат и керамогранит, обивка мебели — износостойкий шенилл.
Также важно было сохранить высоту потолков и частично их просто оштукатурили и покрасили, а все инженерные коммуникации, включая приточно-вытяжную вентиляцию спрятали в гипсокартонных коробах.
Несущие железобетонные колонны стали элементами зонирования общего пространства. Они разделяют кухню, гостиную и прихожую с коридором. Дополнительных стен возводить не стали, а дополнили колонны легким кованым стеллажом, сквозь который свободно проникает естественный свет.
Центральным местом квартиры стал большой обеденный стол, за которым будет собираться вся семья.
Зеркало над кроватью — пожелание клиентов, и мы постарались гармонично вписать его в современный интерьер. В нем красиво отражается хрустальная люстра и большое кожаное изголовье.
В процессе реализации мы поняли, что это наше любимая комната в этом проекте — очень уютная и спокойная.
Для младших сыновей важно было сделать яркую комнату, в которой им будет интересно проводить время.
Отправной точкой дизайна стали фотообои с изображением карты мира. Ее мы дополнили милыми обоями с динозаврами, а остальные стены — покрасили. Краску можно мыть и обновлять по мере необходимости, что очень важно для детской.
Также спроектировали второй ярус с удобной лестницей, а под ним расположили диван.
Изначально в квартире было две спальни, но одним из пожеланий клиентов было выделить отдельную комнату для старшего сына. Ее мы сделали за счет части гостиной. Получилась небольшая, но уютная спальня в форме трапеции. В ней разместился раскладной диван, большое светлое рабочее место и отдельный шкаф для хранения вещей.
Про лоджии тоже не забыли, они здесь служат местом для отдыха взрослых с мини-баром, кальяном и очень уютным диванчиком.





























