Заказчики этого проекта — наши постоянные клиенты. Мы делали для них проекты нескольких квартир, но в этот раз они обратились к нам за дизайном для семейного бизнеса.
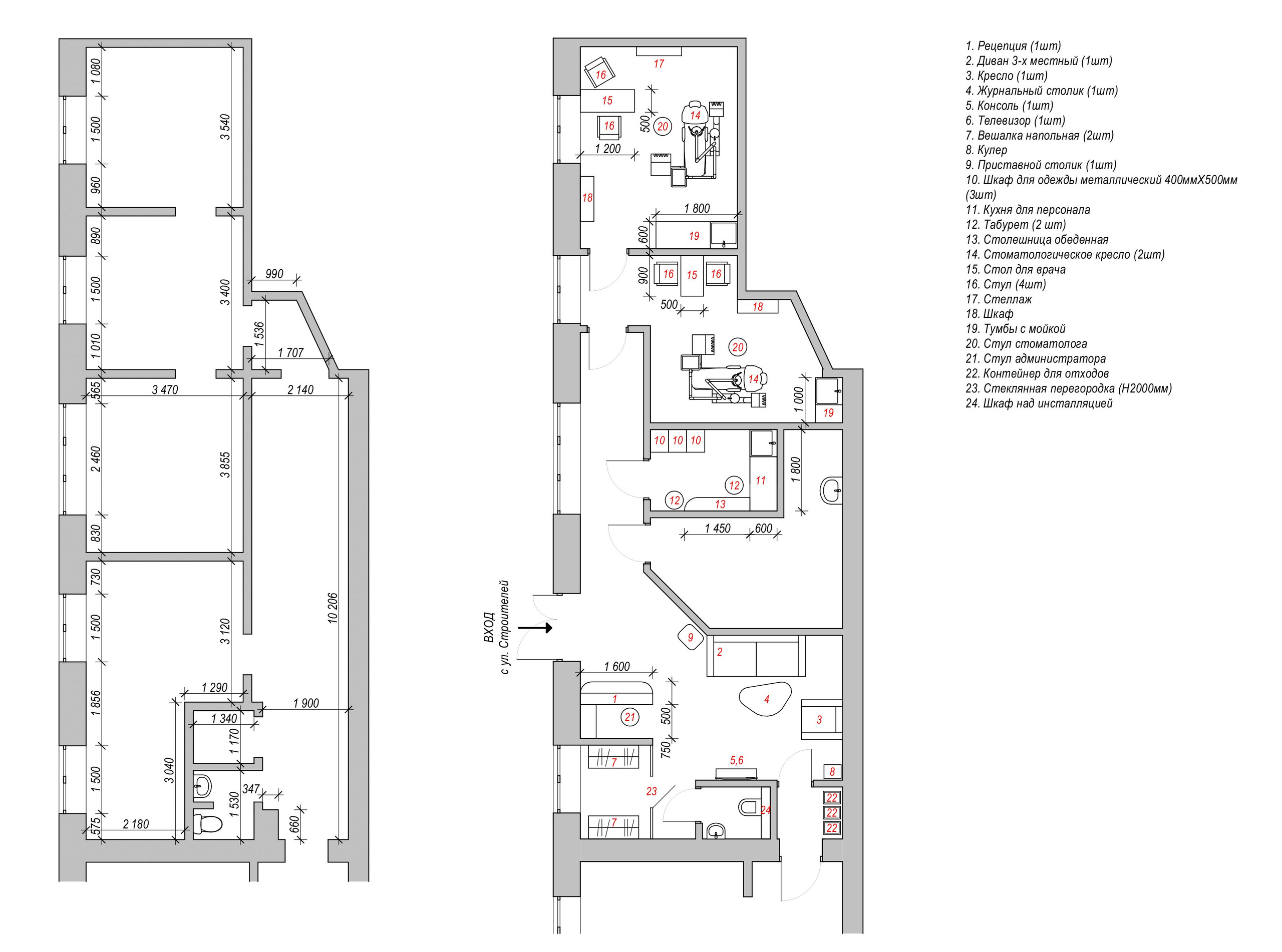
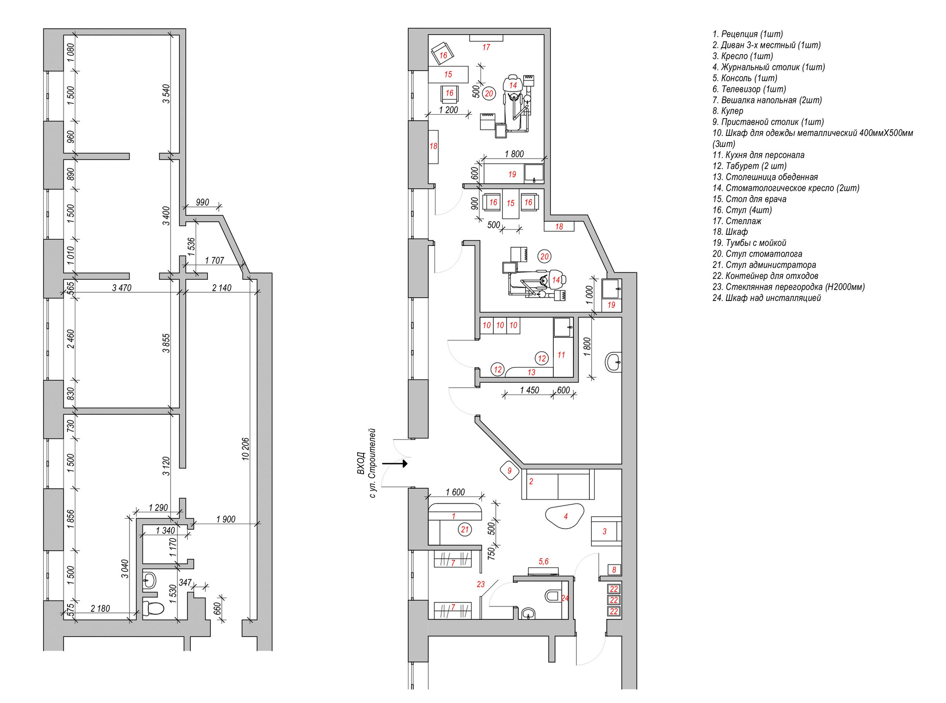
Вытянутое помещение на первом этаже жилого дома на проспекте Вернадского нужно было превратить в авторскую стоматологию. Учесть все необходимые нормы, выполнить перепланировку и разработать лаконичный стильный дизайн.
Основными задачами перепланировки были: выделение пространства под два полноценных стоматологических кабинета, размещение всех необходимых подсобных помещений и организация входа с улицы. При этом существовал старый вход, который хотели оставить на первое время работы клиники. Помимо перепланировки мы продумали электрику, вентиляцию, кондиционирование и освещение, подобрали материалы и специализированную мебель.
Клиентам очень нравились черно-белые интерьеры и ардеко, но также привлекала лаконичность и строгость минимализма. В условиях ограниченного бюджета коммерческого помещения мы создали достаточно строгий фон и разбавили его несколькими выразительными деталями.
Основная часть стен выкрашена краской. Только в холле, где появился длинных коридор и возникла необходимость зонирования пространства, краска дополняется декоративной штукатуркой с эффектом шелка. Мы очень любим этот материал за бюджетность, практичность и за то, что он всегда добавляет изысканности любой поверхности.
Намек на любимый клиентами стиль ардеко делают золотая фурнитура, мраморный пол и эффектные люстры в зоне ожидания посетителей.
























