Мягкая цветовая гамма и несколько разных деревянных фактур в одном интерьере. Полный релакс и ощущение нежности. Бюджетные решения и необычные приемы. Все это — в проекте Лесная республика
Заказчики этого проекта — молодая пара. Они мечтали о современном, удобном и уютном жилье, где можно отдохнуть от суеты и насладиться общением друг с другом. Хотелось что-то очень мягкое, теплое и уютное.
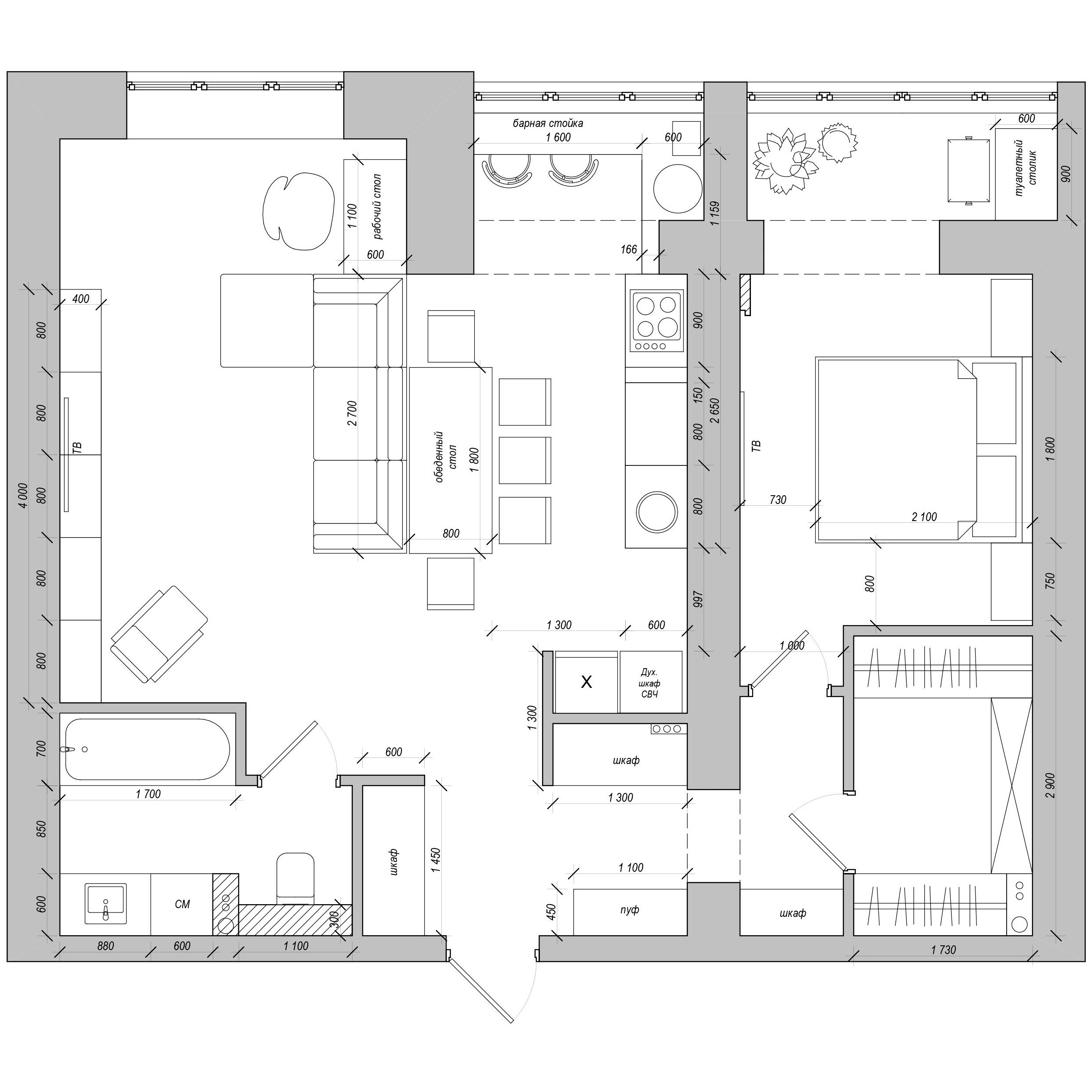
Чтобы добавить функциональности исходному пространству было решено немного изменить планировку. Квартира поделилась на общую и приватную зоны. В общей зоне убрали перегородку между кухней и гостиной, присоединили лоджию. Объединенное пространство получилось просторным, светлым и функциональным. Из квартиры открывается прекрасный вид на лес и город, мы подчеркнули это, установив панорамные окна в гостиной и спальне.
Образами для вдохновения стали песчаный солнечный пляж, пушистый плед и мурлыкающие кошки. Чтобы все это появилось в интерьере мы использовали румяные бежево-розовые оттенки, натуральные, приятные на ощупь фактуры и мягкий теплый свет.
Центральное место в комнате занимает диван. Нашим клиентам было важно, чтобы он был мягкий, удобный, но в то же время практичный. Также давней мечтой было кресло-качалка, в котором можно с комфортом почитать любимую книгу.
Освещение в комнате поделено на зоны, по желанию можно добиться нужного эффекта, включая ту или иную группу светильников. Торшер и подвесы над столом служат для теплого и мягкого камерного освещения, а встроенные светильники и люстра позволяют равномерно подсветить все помещение когда это необходимо.
Спальня находится в приватной зоне. С одной стороны к ней примыкает отдельная просторная гардеробная, а другой — присоединена лоджия, с импровизированным садом из комнатных растений.
Главный акцент в спальне — стена у изголовья, ее мы выполнили в виде деревянного панно с диагональным рисунком. Изначально панно должно было быть выполнено из дерева, но чтобы сэкономить бюджет решили заменить его на керамогранит с древесной фактурой. Это панно дополняется мягким светом от подвесных ламп и скрытой подсветки. Такое освещение добавляет уюта, но при этом не перегружает комнату лишними деталями.
В процессе перепланировки площадь ванной увеличилась за счет прихожей. В новом помещении разместилась вся необходимая сантехника и предусмотрено место для стиральной машины. В функциональных шкафах над раковиной спрятаны бытовые принадлежности, а в зеркальном шкафу над унитазом скрыт водонагреватель.
Клиенты хотели спокойный дизайн, но обязательно с интересными деталями. Очень понравилась плитка с фактурным волнистым рисунком и именно она легла в основу отделки ванной комнаты. Мы дополнили ее вставками из мозаики и цветочным декором из той же коллекции.
В процессе подбора материалов было решено заменить понравившуюся итальянскую плитку на недорогую отечественную похожего дизайна. В коллекции не было мозаики, но мы нашли идеально нам подходящую у другого производителя. В итоге отделка ванной обошлась в несколько раз дешевле.
























