В этой небольшой квартире живут родители и их шестнадцатилетний сын. Они хотели минимальными затратами создать пространство, где будет все необходимое для комфортной жизни. Теплое, уютное и современное.
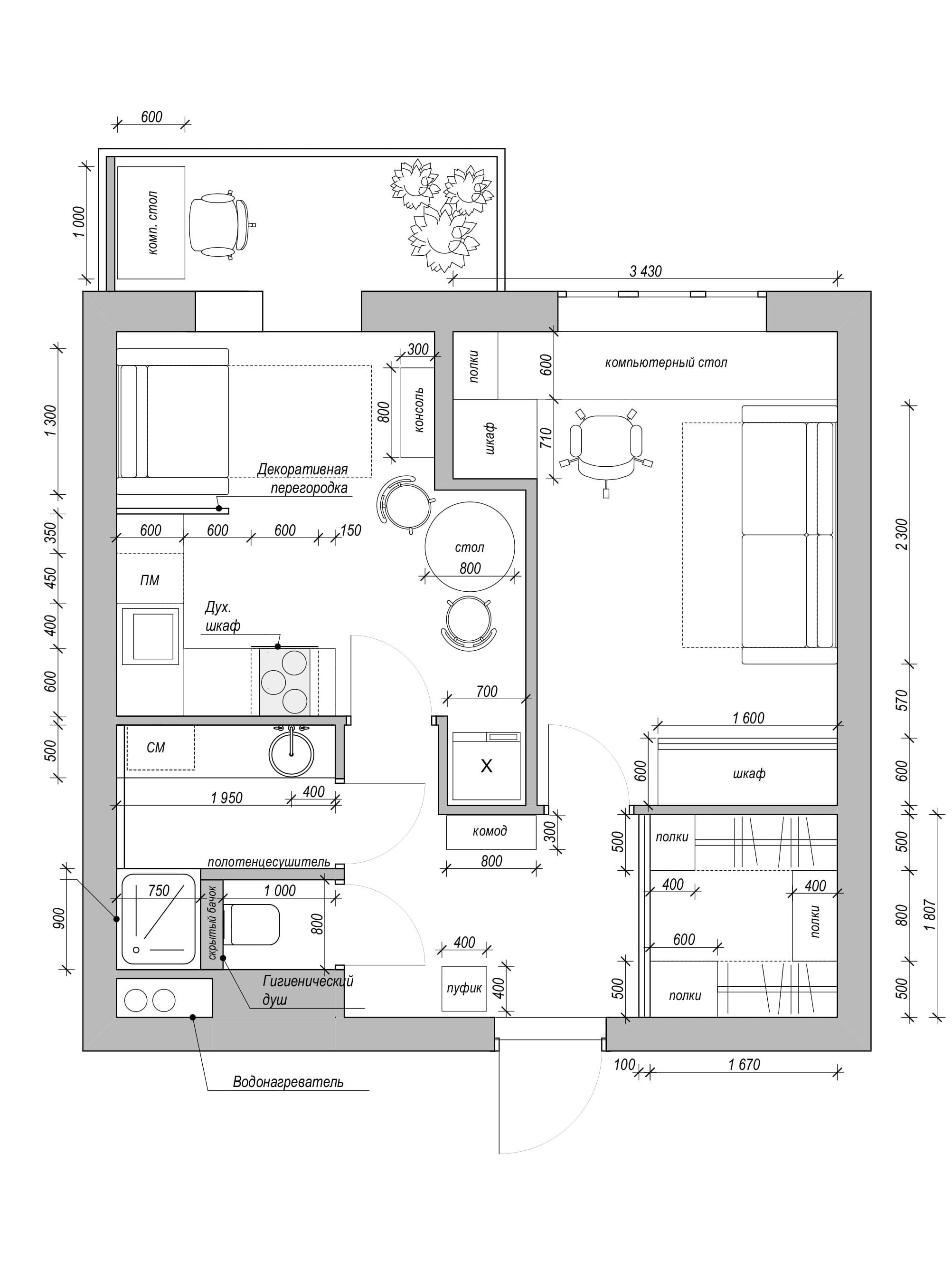
Мы постарались выжать максимум из каждого квадратного метра: присоединили и утеплили лоджию, выделили место под гардеробную, а также превратили кухню в многофункциональное пространство с столовой, рабочим кабинетом и небольшим раскладным диваном.
В качестве примеров дизайна рассматривали интерьеры в стиле лофт, сканди и минимализм. Клиентам очень нравились материалы, которые там используются, особенно красный кирпич. А также нравилась лаконичность и простота этих стилей.
Мы объединили эти приемы и получилось очень уютно и современно.
Теплый бежевый оттенок основных стен красиво сочетается с серой декоративной штукатуркой и подчеркивает фактуру красного кирпича. А на плитке решили сэкономить и вместо нее на стенах ванной и кухонном фартуке появилась та же штукатурка, что и в остальных зонах. Она красивая, а еще влагостойкая и легко моется.
Отдельная спальня для сына — пожелание клиентов. Им было важно, чтобы у каждого была полноценная комната, где можно уединиться. Вместо кровати здесь вписан диван, который привезли из старой квартиры.
Санузел тоже раздельный. При этом ванная комната не выглядит тесной, в ней нашлось место для большой раковины, стиральной машины и душевой.
Вся квартира смотрится цельной за счет использования одних и тех же приемов и небольшого количества одних и тех же материалов во всех комнатах. Это визуально делает пространство больше, что конечно очень важно для однокомнатной квартиры.
Те же приемы были использованы и для прихожей.





























