Легкая цветовая гамма, продуманная планировка и бюджетные решения. Простой, лаконичный и уютный дом в скандинавском стиле для отдыха молодой семьи с двумя детьми.
Наши клиенты купили небольшой деревянный дом и обратились к нам, чтобы сделать уютную дачу для отдыха с семьей и друзьями.
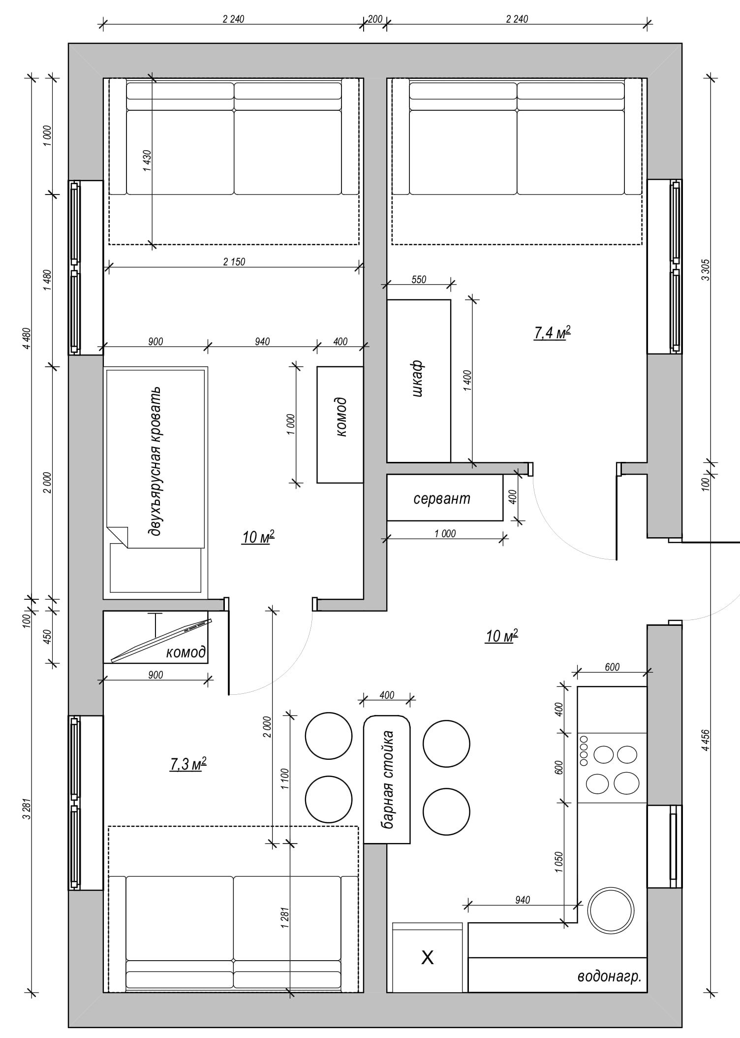
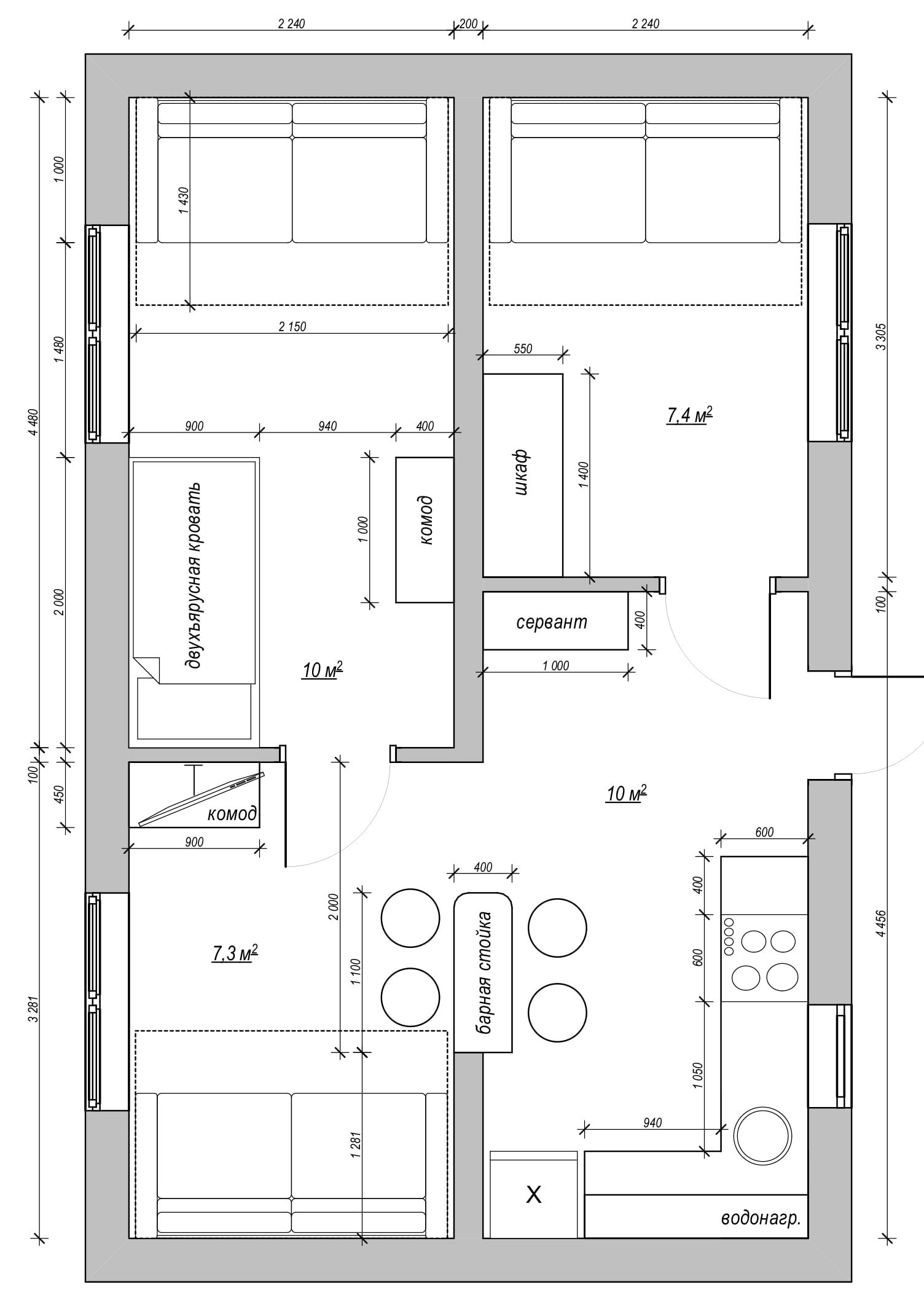
Площадь небольшая, но мы постарались уместить все необходимое: прихожую, две отдельные спальни, достаточно просторную кухню с обеденной зоной и всей нужной техникой, а также уютную зону отдыха.
Поставили три раскладных дивана и двухъярусную кровать для детей, не забыли и про места для хранения в виде двух вместительных шкафов и комода.
Клиенты очень хотели что-то в скандинавском стиле, простое, лаконичное, уютное. При этом чтобы было максимально бюджетно.
В качестве отделки стен мы использовали обои под покраску, молочный цвет для гостиной зоны, серый и голубой для спален. Наши небольшие помещения получились легкими и воздушными.
На полу — линолеум под бетон, потолок — натяжной с встроенными светильниками, которые дают приятное мягкое рассеянное освещение. В качестве акцента — яркие диваны и кухонный фартук из плитки Cersanit Sevilla Печворк.
Скандинавский колорит подчеркивают настенные светильники, деревянная мебель и открытые стеллажи.























